Guia SEGCI - Portal de Segurança Contra Incêndio

Você está em:

Sumário

Informações sobre a norma

A IT  01/2025 está em vigor desde 20 de fevereiro de 2025, conforme disposto na Portaria nº CCB-002/800/25.

Substituiu a Instrução Técnica nº 01/2019 – Procedimentos administrativos.

Publicada no Diário Oficial do Estado de São Paulo, Poder Executivo – Seção I, Suplementos, pág. 23, de 9 de abril de 2019.

Atualizada conforme disposto na Portaria nº CCB-004/800/2025 de 20 de março de 2025.

Esta Instrução Técnica está compilada, ou seja, todas as alterações ocorridas depois da sua publicação estão incorporadas no texto.

Portarias relacionadas à Instrução Técnica 01/2025 – Procedimentos Administrativos

Portaria nº CCB-002/800/2025 – Dispõe sobre as Instruções Técnicas do Corpo de Bombeiros da Polícia Militar do Estado de São Paulo a que alude o Decreto Estadual nº 69.118, de 9 de dezembro de 2024.

Portaria nº CCB-004/800/2025 – Dispõe sobre erratas da Instrução Técnica (IT) nº 01 do Corpo de Bombeiros da Polícia Militar do Estado de São Paulo publicada em 18 de fevereiro de 2025.

SECRETARIA DE ESTADO DOS NEGÓCIOS DA SEGURANÇA PÚBLICA
POLÍCIA MILITAR DO ESTADO DE SÃO PAULO
Corpo de Bombeiros
INSTRUÇÃO TÉCNICA Nº 01/2025
Procedimentos administrativos

1. Objetivo

1.1 Estabelecer critérios para o processo de segurança contra incêndio das edificações e áreas de risco, atendendo ao previsto no Regulamento de Segurança contra Incêndio em edificações e áreas de risco.

2. Aplicação

2.1 Essa Instrução Técnica (IT) aplica-se aos processos de segurança contra incêndio adotados no Corpo de Bombeiros da Polícia Militar do Estado de São Paulo (CBPMESP).

2.2 Para aplicação da medida de segurança “Saídas de emergência” é aceita uma única norma ou lei, exceto quando constar em texto normativo.

3. Definições

3.1 Para os efeitos dessa IT aplicam-se as definições constantes da Instrução Técnica 03 – Terminologia de segurança contra incêndio e no Regulamento de Segurança Contra Incêndio das edificações e áreas de risco no Estado de São Paulo.

4. Licenças emitidas pelo CBPMESP

4.1 As licenças emitidas pelo CBPMESP, mediante aprovação em processo de segurança contra incêndio, são as seguintes:

a. AVCB – Auto de Vistoria do Corpo de Bombeiros;

b. CLCB – Certificado de Licença do Corpo de Bombeiros;

c. TAACB – Termo de Autorização para Adequação do Corpo de Bombeiros.

4.2 A licença do CBPMESP possui prazo de vigência determinado no próprio documento emitido e está condicionada à manutenção das características originais da edificação à qual foi licenciada.

4.3 Nos casos de edificações com ocupações especiais (líquidos igníferos ou gases combustíveis) e com explosivos, a responsabilidade pela garantia dos afastamentos de segurança é individualizada e intransferível ao responsável pelo uso ou responsável técnico.

4.3.1 As exigências de afastamento de segurança são estabelecidas em função das características específicas de cada atividade e devem ser cumpridas independentemente de vigência ou tempo em que houve o licenciamento, ou de alterações em imóveis vizinhos.

5. Formas de apresentação

5.1 As medidas de segurança contra incêndio nas edificações e áreas de risco devem ser apresentadas ao CBPMESP para avaliação por meio de:

a. Projeto Técnico (PT);

b. Projeto Técnico Simplificado (PTS);

c. Projeto Técnico para Ocupação Temporária (PTOT);

d. Projeto Técnico para Ocupação Temporária em Edificação Permanente (PTOTEP).

5.2 Projeto Técnico

5.2.1 O Projeto Técnico deve ser utilizado para apresentação das medidas de segurança contra incêndio das edificações e áreas de risco, nos casos abaixo descritos:

5.2.1.1 possui área superior a 750 m² e mais de três pavimentos;

5.2.1.2 possui área superior a 1.500 m² e mais de 6 m de altura;

5.2.1.3 possui proteção por sistema de chuveiros automáticos;

5.2.1.4 possui sistema de controle de fumaça;

5.2.1.5 possui sistema de detecção e alarme de incêndio;

5.2.1.6 possui sistema de espuma e resfriamento;

5.2.1.7 classificada como divisão “L-1”, com área superior a 100 m², ou divisões “L2” e “L3”;

5.2.1.8 necessita comprovar a separação entre edificações e áreas de risco, conforme Instrução Técnica 07 – Separação entre edificações:

a. a edificação que possui sistemas de segurança contra incêndio independentes das demais edificações do lote (terreno), pode apresentar PT separado, devendo incluir a implantação de toda a área;

b. a edificação existente que possuir interligação por meio de passarela ou de passadiço protegido entre edificação vizinha ou entre blocos no mesmo lote, pode apresentar Projeto Técnico em separado, devendo atender os critérios previstos na Instrução Técnica 43;

c. a edificação classificada como PTS conforme a Instrução Técnica 42, que possuir área inferior a 750 m² e, no máximo, três pavimentos, será considerada isolada quando possuir distância superior a 14,00 m das demais edificações ou áreas de risco no mesmo lote (terreno).

5.2.2 Composição

5.2.2.1 Documentos que compõem o Projeto Técnico:

a. formulário de segurança contra incêndio de Projeto Técnico (Anexo A);

b. procuração do proprietário, quando transferir seu poder de signatário;

c. comprovante de responsabilidade técnica;

d. implantação, quando houver mais de uma edificação ou área de risco, dentro do mesmo lote, ou conjunto de edificações, instalações e áreas de risco;

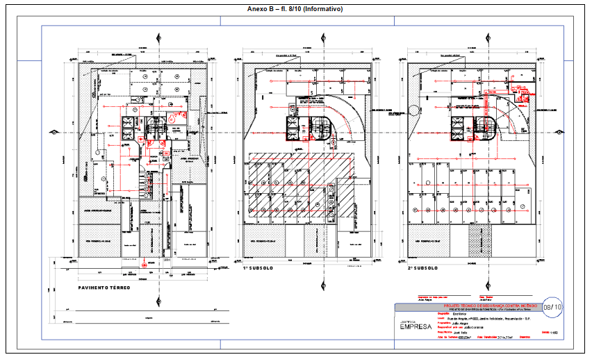
e. planta das medidas de segurança contra incêndio (Anexo B);

f. documentos complementares solicitados pelo SSCI.

5.2.2.2 Formulário de Segurança Contra Incêndio de Projeto Técnico

5.2.2.2.1 Documento digital que compõe um processo de análise ou de vistoria técnica em trâmite no CBPMESP, o qual contém informações básicas sobre a edificação ou área de risco, os signatários e as medidas de segurança contra incêndio.

5.2.2.3 Procuração do proprietário

5.2.2.3.1 Documento a ser apresentado sempre que um terceiro assinar documentos no Projeto Técnico quando o proprietário transferir seu poder de signatário.

5.2.2.4 Comprovante de Responsabilidade Técnica

5.2.2.4.1 É o instrumento emitido pelo conselho de classe do profissional que comprova sua responsabilidade técnica.

5.2.2.4.2 Os campos do comprovante de responsabilidade técnica devem estar devidamente preenchidos quanto à descrição das atividades profissionais contratadas e os serviços pelos quais o profissional é responsável.

5.2.2.4.3 O profissional instituído como responsável técnico de um processo pode ser substituído durante o seu andamento, desde que seja comprovada a anuência do proprietário ou do responsável pelo uso, acompanhado do novo comprovante de responsabilidade técnica.

5.2.2.5 Documentos complementares

5.2.2.5.1 Documentos solicitados pelo SSCI para subsidiar a aprovação de análise ou de vistoria do Projeto Técnico de segurança contra incêndio da edificação ou área de risco, quando suas características assim exigirem.

5.2.2.6 Memorial industrial de segurança contra incêndio

5.2.2.6.1 Descritivo de processos industriais, matérias-primas, produtos acabados, líquidos inflamáveis ou combustíveis com ponto de fulgor, estoques, entre outros (Anexo G).

5.2.2.7 Memorial de cálculo

5.2.2.7.1 Descritivo de cálculos do dimensionamento de sistemas fixos contra incêndio, tais como: hidrantes, chuveiros automáticos, pressurização de escada, sistema de espuma e resfriamento, controle de fumaça, dentre outros.

5.2.2.7.2 No desenvolvimento dos cálculos hidráulicos das medidas de segurança contra incêndio para líquidos combustíveis e inflamáveis, deve ser considerado o desempenho dos equipamentos, utilizando-se as referências de vazão, pressão e perda de carga. Quando necessário, pode ser solicitada a apresentação de catálogos técnicos.

5.2.2.8 Memorial do sistema fixo de gases para combate a incêndio

5.2.2.8.1 Memorial descritivo do sistema fixo de gases para combate a incêndio, conforme Instrução Técnica 26 – Sistema fixo de gases para combate a incêndio, devendo conter:

a. norma adotada;

b. tipo de sistema fixo;

c. agente extintor empregado;

d. forma de acionamento (manual ou automático).

5.2.2.9 Documentos referentes ao comércio de fogos de artifício:

a. inventário de estoque para fogos de artifício, conforme IT 30 – Fogos de artifício;

b. detalhes construtivos previstos na IT 30 a serem inseridos no memorial básico de construção (Anexo H);

c. inventário de estoque para fogos de artifício, que deve conter os dados cadastrais da empresa, dados do proprietário, carteira de capacitação profissional do responsável pelo comércio fornecida pelo Órgão Competente da Polícia Civil do Estado de São Paulo, volume médio do estoque em metros cúbicos, por tipo e classificação dos produtos;

d. memorial descritivo de construção com destaque para a descrição dos compartimentos, dos afastamentos, dos recuos, das instalações elétricas, do piso, do teto, das paredes, da cobertura e do forro;

e. planta baixa e de corte da edificação contendo o leiaute interno, disposição e detalhes das prateleiras e sinalização de emergência;

5.2.2.10 Memorial de dimensionamento da carga de incêndio

5.2.2.10.1 Memorial descritivo da carga de incêndio dos materiais existentes na edificação ou área de risco contendo o dimensionamento conforme Instrução Técnica 14 – Carga de Incêndio nas Edificações e Áreas de Risco:

a. os materiais devem ser individualizados em unidades, relacionando-os com suas respectivas massas (kg), sendo que o resultado deve ser dado em unidades absolutas (ex.: 200 prateleiras com 30 pallets em cada uma e com 20 caixas em cada pallet);

b. quando não apresentados os cálculos, deve-se adotar a “Tabela de carga de incêndio relativa à altura de armazenamento (depósitos)”, da IT 14 (Anexo B).

5.2.2.11 Documentação comprobatória

5.2.2.11.1 São registros, títulos, certidões ou similares que, quando analisados conjuntamente, tornam possível o entendimento de que as edificações são existentes (ex.: planta aprovada na prefeitura, planta aprovada junto ao Corpo de Bombeiros, licença do Corpo de Bombeiros, publicações em jornais, fotos, placas, marcos públicos, IPTU etc.).

5.2.2.12 Cálculo de dimensionamento de lotação e saídas de emergência em locais de reunião de público

5.2.2.12.1 Descritivo do dimensionamento de lotação de ambientes e saídas de emergência em locais de reunião de público, conforme Instrução Técnica 11.

5.2.2.12.2 Os cálculos do dimensionamento podem ser descritos diretamente nas plantas.

5.2.2.13 Memorial de cálculo de dimensionamento de lotação e saídas de emergência em centros esportivos e de exibição

5.2.2.13.1 Descritivo do dimensionamento de lotação de ambientes e saídas de emergência em recintos desportivos e de espetáculo artístico cultural, conforme Instrução Técnica 12.

5.2.2.14 Memorial básico de construção

5.2.2.14.1 Descritivo das características estruturais da edificação ou da área de risco (Anexo H).

5.2.2.15 Memorial de segurança contra incêndio das estruturas

5.2.2.15.1 Descritivo do dimensionamento dos revestimentos das estruturas contra ação do calor e outros, conforme Instrução Técnica 08 (IT 08).

5.2.2.16 Memorial de dimensionamento e descritivo da lógica de funcionamento do sistema de controle de fumaça
5.2.2.16.1 Descritivo dos parâmetros técnicos adotados para dimensionamento do sistema de controle de fumaça e para a lógica do funcionamento.

5.2.2.17 Memorial de cálculo de pressurização de escada

5.2.2.17.1 Descritivo do dimensionamento do sistema de pressurização da escada de emergência.

5.2.2.18 Memorial de cálculo de isolamento de risco

5.2.2.18.1 Descritivo do dimensionamento do isolamento de risco entre edificações e áreas de risco.

5.2.2.19 Implantação

5.2.2.19.1 Folha única, em escala padronizada, que deve ser apresentada quando (Anexo D):

a. houver mais de uma edificação ou área de risco a ser representada;

b. houver uma única edificação ou área de risco com dimensões que não podem ser representadas em uma única folha.

5.2.2.20 Planta das medidas de segurança contra incêndio

5.2.2.20.1 Representação gráfica da edificação ou área de risco para indicar as medidas de segurança contra incêndio, bem como os riscos existentes, conforme subitem 5.4.3.

5.2.3 Apresentação da planta das medidas de segurança contra incêndio

5.2.3.1 Processo de regularização de Projeto Técnico

5.2.3.1.1 As plantas das medidas de segurança contra incêndio em formato eletrônico devem ser apresentadas para análise do CBPMESP atendendo as seguintes especificações:

a. seguir a forma de apresentação gráfica conforme padrão adotado por normas oficiais;

b. as escalas adotadas devem ser as estabelecidas em normas oficiais;

c. os pontos de delimitação do lote, das construções e riscos específicos devem ter suas coordenadas geográficas definidas de acordo com o sistema SIRGAS2000, conforme subitem 5.4.2.1d;

d. adotar os símbolos gráficos, conforme Instrução Técnica 04;

e. o desenho deve ser elaborado em arquivo no formato “.dwg”, obedecendo rigorosamente a escala 1:1, a fim de permitir a mensuração das medidas arquitetônicas no arquivo de formato “.dwf” a ser apresentado;

f. a primeira folha deve conter quadro de áreas da edificação ou área de risco;

g. os detalhes de proteção estrutural, compartimentação vertical e escadas devem ser apresentados em planta de corte, sendo facultativo apresentar a planta de fachada;

h. a planta deve ser apresentada em um único arquivo tamanho máximo 2 Mb (Megabytes), contendo o maior número de folhas possíveis, padrão Design Web Format (.dwf);

1) se a quantidade de plantas anexadas em uma folha originar um arquivo de tamanho superior a 2 Mb, pode ser subdividido em dois ou mais;

2) o arquivo não pode ser subdividido se a quantidade de plantas na folha não exceder o limite permitido;

i. para reduzir o tamanho do arquivo antes de exportar para o formato “.dwf”, o Responsável deve excluir (limpar) os dados desnecessários;

j. pode ser aplicado nos desenhos os comandos “purge”, “overkill” ou equivalente, e adotar, obrigatoriamente, as configurações de exportação constantes no subitem 5.4.3.1.2;

k. todas as folhas devem ser numeradas (01 de “x” folhas, e assim por diante) e dispostas na ordem crescente, de cima para baixo, da esquerda para a direita;

l. ao realizar o upload das plantas, o sistema “Via Fácil Bombeiros” (VFB) renomeia automaticamente o arquivo em formato “.dwf”, passando a constar o número do protocolo e a sequência do arquivo;

m. casos de envio de mais de um arquivo de plantas, o upload deve ser feito na sequência da ordem das folhas para o sistema renomear o arquivo corretamente.

5.2.3.1.2 Ao exportar o desenho do formato “.dwg” ou equivalente, para o formato “.dwf”, utilizando o recurso de impressão (plotter), deve ser providenciada a seguinte configuração de saída (CTB):

a. todas as linhas devem ser ajustadas para a largura da pena (line weight) de 0,05000 mm;

b. as plantas devem conter apenas as cores (plot styles):

1) vermelha, para a representação gráfica das medidas de proteção contra incêndio;

2) preta, para a representação gráfica das demais linhas do desenho;

3) azul, para a representação gráfica das áreas frias hachuradas, quando consideradas para desconto de área;

4) as plantas de detalhes, com as sinalizações e simbologias, podem ser definidas nas cores constantes na Instrução Técnica 20 – Sinalização de emergência.

c. para colocar o máximo de plantas possíveis no mesmo arquivo, o tamanho da folha (paper size) é livre, e pode ser definido em um formato padrão ou superior ao A0, com tamanho personalizado manualmente (ex.: 3.000 mm x 2.000 mm);

d. recomenda-se a utilização do recurso de ajuste ao papel (fit to paper) para a inclusão de todas as folhas selecionadas no arquivo “.dwf”;

e. caso a escala ultrapasse a proporção de 1 para 0,4 o tamanho do papel (paper size) deve ser aumentado, sendo essa escala e o tamanho de 2 Mb (Megabytes) as únicas limitações para a quantidade de folhas a serem inseridas no arquivo;

f. quando o Projeto Técnico apresentar dificuldade para visualização das medidas de segurança contra incêndio alocado em um espaço da planta devido à grande quantidade de elementos gráficos, deve ser feita linha de chamada em círculo com linha pontilhada com alocação dos símbolos exigidos

5.2.3.1.3 As folhas devem vir dispostas em uma única página do arquivo.
5.2.3.1.4 Deve constar obrigatoriamente no campo de identificação localizado na parte inferior direita (carimbo) das plantas de medidas de segurança contra incêndio:

a. o nome do proprietário ou do responsável pelo uso;

b. o nome do responsável técnico;

c. o número de registro junto ao conselho de classe do profissional;

d. o número do comprovante de responsabilidade técnica relativa à elaboração do projeto;

e. o endereço da edificação;

f. o número da folha;

g. a parte da edificação representada, bem como outras informações importantes de acordo com as normas brasileiras pertinentes.

5.2.3.1.5 Os projetos assinados por mais de um responsável técnico, com plantas e memoriais próprios, tais como os de sistema de pressurização de escada, de controle de fumaça, de chuveiros automáticos, dentre outros, devem seguir os mesmos parâmetros estipulados nos subitens 5.4.3.1 a 5.4.3.1.4.

5.2.3.2 Conteúdo da planta das medidas de segurança contra incêndio
5.2.3.2.1 Detalhes genéricos que devem constar nas plantas:

a. símbolos gráficos, conforme Instrução Técnica 04, das medidas de segurança contra incêndio em planta baixa;

b. legenda de todas as medidas de segurança contra incêndio utilizadas no Projeto Técnico. A apresentação dos demais símbolos não utilizados no Projeto Técnico é opcional;

c. nota, em planta, contendo a indicação dos equipamentos móveis ou fixos, ou dos sistemas de segurança instalados que possuem a mesma capacidade ou dimensão;

d. áreas construídas e áreas de risco com suas características, tais como:

1) tanques de combustível (produto e capacidade);

2) casa de caldeiras ou vasos sob pressão;

3) cabinas de pintura;

4) locais de armazenamento de recipientes contendo gases inflamáveis (capacidade do recipiente e quantidade armazenada);

5) áreas com risco de explosão;

6) centrais prediais de gases inflamáveis;

7) depósito de metais pirofóricos;

8) depósito de produtos perigosos;

9) depósito de materiais combustíveis em áreas abertas;

10) estação de recarga para veículos elétricos;

11) instalações elétricas com arranjos fotovoltaicos;

12) outros riscos que necessitem de segurança contra incêndio.

e. as plantas das medidas de segurança contra incêndio devem ser apresentadas com as simbologias de segurança contra incêndio na cor vermelha, distinguindo-as dos demais detalhes da planta (outros itens da planta na cor vermelha podem ser incluídos, desde que sua representação tenha vínculo com as medidas de segurança contra incêndio);

f. o esquema isométrico da tubulação, apresentado conforme o subitem 5.4.3.2.2 (detalhes específicos que devem constar em planta);

g. quadro de situação da edificação ou área de risco, sem escala, indicando logradouros que delimitam a quadra;

h. quadro resumo das medidas de segurança contra incêndio indicando normas ou legislações aplicadas nas respectivas medidas de segurança constantes do Projeto Técnico, conforme Anexo C;

i. cotas dos desníveis em uma planta baixa, quando houver;

j. detalhes das medidas de proteção passiva contra incêndio nas plantas de corte, tais como dutos de ventilação da escada, distância verga peitoril, escadas, antecâmaras, detalhes de estruturas e outros, quando houver a exigência específica;

k. aberturas para o exterior, como janelas ou painéis de vidro, ou controle de fumaça;

l. localização e independência do sistema elétrico em relação à chave geral de energia da edificação ou área de risco, sempre que a medida de segurança contra incêndio tiver seu funcionamento baseado em motores elétricos;

m. miniatura da implantação com hachuramento da área, sempre que houver planta fracionada em mais de uma folha, conforme planta chave;

n. destaque no desenho das áreas frias a serem desconsideradas no somatório de áreas (banheiros, vestiários, escadas enclausuradas, dentre outros) especificadas em quadro de áreas próprio, quando houver solicitação de isenção de medidas de segurança contra incêndio;

o. indicar eixos transversais e longitudinais na cor 252 e respectivas cotas de 10 m, no quadrante superior esquerdo, na implantação e na planta de risco.

Nota: Os detalhes genéricos constantes do Projeto Técnico devem ser apresentados na primeira folha ou, nos casos em que tais detalhes não caibam nesta, devem constar nas próximas folhas, tais como:

a) legenda;

b) isométrico;

c) quadro resumo das medidas de segurança;

d) quadro de localização da edificação ou áreas de risco;

e) quadro de áreas;

f) detalhes de corrimãos e guarda-corpos;

g) detalhes de degraus

h) detalhe da ventilação efetiva da escada de segurança;

i) detalhe do registro de recalque;

j) nota sobre o sistema de sinalização adotado;

k) detalhe da sucção da bomba de incêndio;

l) detalhes dos chuveiros automáticos;

m) quadro do sistema de gases e líquidos inflamáveis e combustíveis e outros.

5.2.3.2.2 Detalhes específicos que devem constar na planta de acordo com a medida de segurança projetada para a edificação ou para a área de risco prevista nas respectivas Instruções Técnicas:

a. Acesso de viatura na edificação ou área de risco (IT 06):

1) largura da via de acesso;

2) sentido da direção do trânsito, via de acesso de mão única ou mão dupla;

3) peso suportado pelo pavimento da via de acesso, em Kgf;

4) largura e altura do portão de entrada da via de acesso;

b. Separação entre edificações (IT 07), para as edificações objetos de cálculo:

1) distância de outras edificações no mesmo lote (terreno);

2) ocupação, principal, subsidiárias ou mistas;

3) carga de incêndio;

4) aberturas nas fachadas e suas respectivas dimensões;

5) fachada da edificação considerada para o cálculo de isolamento de risco e suas respectivas dimensões;

6) parede corta-fogo de isolamento de risco;

7) memorial de cálculo de isolamento de risco.

c. Segurança estrutural nas edificações (IT 08):

1) tempo requerido de resistência ao fogo (TRRF) das estruturas, em nota ou legenda e no memorial de construção, independentemente do tipo de estrutura;

2) tipos de estrutura e materiais empregados;

3) áreas onde as estruturas são protegidas com material resistente ao fogo e, se for o caso, os locais isentos de revestimento, conforme IT 08 (Anexo A);

4) estruturas protegidas e os respectivos valores e as cartas de cobertura.

d. Compartimentação horizontal e compartimentação vertical (IT 09):

1) áreas compartimentadas e o respectivo quadro de áreas;

2) aba horizontal;

3) aba vertical;

4) afastamento de aberturas perpendiculares à parede corta-fogo para compartimentação;

5) tempo de resistência ao fogo (TRRF) dos elementos estruturais utilizados;

6) elementos corta-fogo:

7) parede corta-fogo para compartimentação;

8) vedador corta-fogo;

9) selo corta-fogo;

10) porta corta-fogo;

11) cortina corta-fogo;

12) cortina d’água;

13) vidro corta-fogo.

e. Controle de materiais de acabamento e de revestimento (IT 10):

1) classe dos materiais de piso, parede, divisória, teto e forro, correspondente a cada ambiente nos respectivos cortes, ou em notas específicas, ou apresentar quadro de informações referentes a Instrução Técnica 10, indicando a classificação de CMAR conforme o pavimento ou ambiente.

f. Saídas de emergências (IT 11):

1) detalhes de degraus;

2) detalhes de corrimãos;

3) detalhes de guarda-corpos;

4) largura das escadas;

5) detalhe da ventilação efetiva da escada de segurança (quando houver);

6) largura das portas das saídas de emergência;

7) barra antipânico (quando houver);

8) casa de máquinas do elevador de emergência (quando houver);

9) antecâmaras de segurança (quando houver);

10) lotação do ambiente quando se tratar de local de reunião de público (Grupo  F), escolas (Divisões E-1, E-2, E-4, E-5 e E-6) e Call Center (Divisão D-1), individualizando a lotação por ambiente.

g. Centros esportivos e de exibição – Requisitos de segurança contra incêndio (IT 12):

1) larguras das escadas, dos acessos e das portas das saídas de emergência;

2) larguras das portas das entradas dos recintos;

3) barra antipânico, onde houver;

4) corrimãos em escadas e rampas, inclusive os corrimãos centrais;

5) dimensões da base e espelho dos degraus;

6) porcentagem de inclinação das rampas;

7) lotações dos ambientes;

8) delimitação física da área de público em pé;

9) dimensões dos camarotes, quando houver;

10) Dimensões das cadeiras fixas, dobráveis ou não, e o espaçamento entre elas;

11) Revestimento do piso;

12) Equipamentos de som;

13) Localização do grupo motogerador;

14) Localização dos blocos autônomos;

15) Quadro de informações sobre os sistemas de controle de acesso do público.

h. Pressurização de escada de segurança (IT 13):

1) Sala do grupo motoventilador;

2) Dimensões do ponto de captação de ar;

3) Detectores de acionamento do sistema;

4) Central de detecção de incêndio;

5) Fonte alternativa de energia do sistema;

6) Grelhas de insuflamento;

7) Caminhamento dos dutos;

8) Localização do grupo motogerador;

9) Janela de sobrepressão;

10) Corte esquemático do sistema;

11) Acionadores manuais de motoventiladores;

12) Sala do grupo motoventilador;

13) Local de supervisão predial com permanência humana constante;

14) Elementos de compartimentação de risco (parede e porta corta-fogo) da sala do grupo motoventilador;

15) Antecâmara de segurança;

16) Porta corta-fogo à prova de fumaça, quando a sala do grupo motoventilador estiver localizada em pavimento que possa causar risco de captação de fumaça de um incêndio.

i. Carga de incêndio nas edificações e áreas de risco (IT 14):

1) Carga de incêndio específica, para as ocupações não listadas na IT 14;

2) Carga de incêndio (quando necessário).

j. Controle de fumaça (IT 15):

1) Entrada de ar (aberturas, grelhas, venezianas e insuflação mecânica);

2) Exaustores naturais (entradas, aberturas, grelhas, venezianas, claraboias e alçapões);

3) Exaustores mecânicos;

4) Dutos e peças especiais;

5) Registro corta-fogo e fumaça;

6) Pontos de acionamento alternativo do sistema;

7) Detectores de incêndio;

8) Central de alarme e detecção de incêndio;

9) Casa de máquinas dos insufladores e exaustores;

10) Fonte de alimentação, quadros e comandos;

11) Descritivo da lógica de funcionamento do sistema de controle de fumaça.

k. Iluminação de emergência (IT 18):

1) Pontos de iluminação de emergência;

2) Luminárias a serem acionadas em caso de emergência, quando o sistema for alimentado por grupo motogerador (GMG);

3) Central do sistema;

4) Fonte alternativa de energia do sistema;

5) Abrangência, autonomia e o sistema de automatização do GMG;

6) Duto de entrada de ar;

7) Parede e porta corta-fogo da sala do GMG, quando localizada em área com risco de captação de fumaça ou gases quentes provenientes de um incêndio;

8) Nota descritiva da proteção dos dutos instalados em área de risco.

l. Sistema de detecção e alarme de incêndio (IT 19):

1) Detectores de incêndio;

2) Acionadores manuais de alarme de incêndio;

3) Sinalizadores sonoros e visuais;

4) Central do sistema;

5) Painel repetidor (quando houver);

6) Fonte alternativa de energia do sistema.

m. Sistema de sinalização de emergência (IT 20):

1) Nota referenciando o atendimento do sistema de sinalização de emergência de acordo com a IT 20.

n. Sistema de proteção por extintores de incêndio (IT 21):

1) Unidades extintoras;

2) Quando forem usadas unidades extintoras com capacidades diferentes de um mesmo agente, indicar a capacidade ao lado de cada símbolo.

o. Sistema de hidrantes e de mangotinhos para combate a incêndio (IT 22):

1) Pontos de hidrantes ou mangotinhos;

2) Botoeiras de acionamento da bomba de incêndio;

3) Dispositivo de acionamento no barrilete, para sistema de acionamento automatizado;

4) Acionador manual alternativo da bomba de incêndio em local de supervisão predial, e permanência humana constante;

5) Registro de recalque e as condições de instalação.

6) Quando houver mais de um sistema de hidrantes instalado, indicar o registro de recalque de cada sistema;

7) Reservatório técnico de incêndio (RTI) e capacidade volumétrica;

8) Bomba de incêndio principal (BI) e jockey (quando houver) com indicação de pressão, vazão e potência;

9) Quando forem usadas mangueiras de incêndio e esguichos com comprimentos e requintes diferentes, indicar as respectivas dimensões ao lado do símbolo do hidrante;

10) Perspectiva isométrica completa, sem escala e com cotas;

11) Poço de sucção do reservatório subterrâneo ou ao nível do solo;

12) Sistema de abastecimento de água por fonte natural (lago, lagoa, açude etc.).

p. Sistema de chuveiros automáticos (IT 23 e 24):

1) Bombas de incêndio (BI) do sistema, com indicação da pressão, vazão e potência;

2) Área de aplicação dos chuveiros automáticos para os respectivos riscos (hachurada);

3) Tipos de chuveiros automáticos especificados;

4) Cabeçotes de testes;

5) Área de cobertura e localização das válvulas de governo e alarme (VGA), e dos comandos secundários (CS);

6) Painel do alarme do sistema;

7) Locais de substituição dos chuveiros automáticos por detectores de incêndio;

8) Esquema isométrico da tubulação envolvida no cálculo, com as dimensões e cotas;

9) Tubulações de distribuição, com respectivos diâmetros e cotas de distância;

10) Pontos de chuveiros automáticos, em toda a edificação ou áreas de risco;

11) Sistema de abastecimento de água por fonte natural (lago, lagoa, açude etc.);

12) Dispositivo de acionamento no barrilete, para sistema de acionamento automatizado;

13) Acionador manual alternativo da bomba de incêndio em local de supervisão predial, e permanência humana constante;

14) Registro de recalque e as condições de instalação;

15) Reservatório técnico de incêndio (RTI) do sistema e capacidade volumétrica;

16) Altura de armazenamento (de mercadoria);

17) Classe da mercadoria armazenada;

18) Altura de teto (ou telhado);

19) Tipo do teto (ou telhado);

20) Quadro indicativo do fator “K” e do modelo de chuveiro automático utilizado em cada área.

Nota:
Consultar o subitem 5.6.9, em complemento às disposições acima.

q. Segurança contra incêndio para líquidos combustíveis e inflamáveis (IT 25):

1) Todos os tanques e instalações;

2) Tipo de tanque (elevado, subterrâneo, vertical ou horizontal);

3) Tipo de superfície do tanque (teto flutuante ou fixo);

4) Afastamentos entre tanques, entre edificações, vias públicas, limites de propriedades;

5) Dimensões das bacias de contenção, com cotas;

6) Capacidade volumétrica de armazenamento de cada tanque;

7) Tipo de produto inflamável ou combustível, e ponto de fulgor;

8) Tanque considerado de maior risco para efeito de cálculo em cada cenário;

9) Tanques considerados vizinhos ao tanque de maior risco;

10) Equipamentos de segurança contra incêndio (extintores de incêndio, bombas de incêndio, esguichos reguláveis e lançadores de espuma, proporcionadores, canhões-monitores, aspersores, câmaras de espuma, registro de recalque, dentre outros);

11) Quadro indicando o tipo de tanque, o produto armazenado, o volume, o ponto de fulgor, o diâmetro e a altura do tanque;

12) Volume do líquido gerador de espuma (LGE);

13) Especificações dos equipamentos considerados no cálculo;

14) Tabela dos produtos armazenados com seu ponto de fulgor e classificação;

15) Catálogos dos equipamentos de proteção contra incêndio projetados;

16) Sistemas de contenção e drenagem;

17) Dimensões das bacias de contenção e respectivos volumes;

18) Esquema isométrico da tubulação envolvida no cálculo, com os diâmetros, comprimentos dos trechos, pontos de equilíbrio de pressão;

19) Cenários de incêndio, para cada tanque em relação aos tanques vizinhos;

20) Representação gráfica do alcance dos canhões-monitores e das linhas manuais;

21) Distribuição dos aspersores nos costados e tetos dos tanques.

22) Pressões e as temperaturas de trabalho dos diversos tanques e equipamentos de processo;

23) Características construtivas dos tanques (apresentar a norma construtiva, o tipo de teto, a existência de selo flutuante, o tipo de selo flutuante, a altura do tanque, o diâmetro do tanque, o volume dos tanques etc.);

24) Quantidade de produtos utilizados ou armazenados em cada um dos tanques e nos equipamentos de processo;

25) Tanques subterrâneos;

26) Dimensões dos tanques;

27) Sistema de ventilação para tanques internos;

28) Áreas de contenção internas e áreas de drenagens, hachuradas;

29) Arranjo de armazenamento de produtos fracionados;

30) Tipo e volume dos recipientes utilizados para o armazenamento, bem como as válvulas de alívio de pressão, se exigidas;

31) Planta de corte, com detalhes da altura da edificação e altura de armazenamento;

32) Larguras de corredores entre pilhas, prateleiras ou estruturas de suporte;

33) Dimensões e volume das pilhas de armazenamento;

34) Alcance dos canhões monitores e das linhas manuais, conforme cálculo para atendimento do rendimento indicado pelo fabricante;

35) Memorial industrial, com a descrição do fluxo do processo envolvendo os líquidos inflamáveis;

36) Produtos utilizados ou armazenados em cada um dos tanques e equipamentos de processo;

37) Dimensões dos equipamentos de processo;

38) Local de abastecimento para caminhões ou vagões-tanques.

r. Sistema fixo de gases para combate a incêndio (IT 26):

1) Botoeira alternativa para acionamento do sistema fixo;

2) Botoeira de desativação do sistema;

3) Central do sistema de detecção e alarme de incêndio;

4) Detectores de incêndio;

5) Bateria de cilindros de gases;

6) Áreas protegidas pelo sistema fixo de gases;

7) Tempo de retardo para evacuação do local.

s. Armazenamento em silos (IT 27):

1) Respiro da cobertura de cada silo;

2) Largura das escadas;

3) Quadro de informações sobre os sistemas, alertando que os elevadores devem ser fechados em poços estanques, guarnecidos com paredes resistentes ao fogo por duas horas;

4) Luminárias à prova de explosão e de pó instaladas na área de risco, inclusive as de emergência;

5) Transportadores verticais e horizontais dotados de sensores automáticos de movimento, que desligam automaticamente os motores ao ser detectado o escorregamento da correia ou corrente;

6) Portas corta-fogo (PCF), tipo P-90, com fecho automático em todas as aberturas, nas escadas e elevadores;

7) Sensor de temperatura localizado entre os dispositivos de produção de calor e o secador;

8) Dispositivo corta-fogo provido de alívio de explosão, localizado no duto de conexão entre os silos e o dispositivo de coleta de poeira;

9) Cobertura da vedação contra pó e contra água;

10) Sistema de detecção e de extinção de faíscas;

11) Todos os locais confinados onde forem previstos ventiladores à prova de explosão, com acionamento manual ou automático;

12) Dispositivos de alívio de explosão nos equipamentos (dutos, silos de pó, coletores etc.), edificações e estruturas onde exista risco de explosão devido ao acúmulo de pó.

t. Manipulação, armazenamento, comercialização e utilização de gás liquefeito de petróleo – GLP (IT 28):

1) Central de GLP;

2) Capacidade dos recipientes, bem como da capacidade total da central;

3) Afastamentos das divisas de terrenos, áreas edificadas no mesmo lote e locais de risco;

4) Localização do recipiente e das aberturas previstas para ventilação (caso de área interna em unidade habitacional quando permitido pela IT 28);

5) Equipamentos de segurança contra incêndio (bombas de incêndio, esguichos reguláveis, canhões-monitores, aspersores, registro de recalque, entre outros), se houver exigência de sistema de resfriamento;

6) Esquema isométrico da tubulação envolvida no cálculo, com os diâmetros, comprimentos dos trechos, pontos de equilíbrio de pressão, se houver exigência de sistema de resfriamento;

7) Nota descritiva do atendimento das distâncias de segurança, conforme IT 28.

u. Comercialização, distribuição e utilização de gás natural (IT 29):

1) Compressores, descompressores, estocagem e unidades de abastecimento de gás;

2) Equipamentos de segurança contra incêndio (bombas de incêndio, esguichos reguláveis, canhões-monitores, aspersores, registro de recalque, entre outros), se houver exigência de sistema de resfriamento;

3) esquema isométrico da tubulação envolvida no cálculo, com os diâmetros, comprimentos dos trechos, pontos de equilíbrio de pressão, se houver exigência de sistema de resfriamento;

4) nota descritiva do atendimento das distâncias de segurança, conforme IT 29.

v. Fogos de artifício (IT 30):

1) Notas com as distâncias de separação do comércio à via pública, edifícios habitados e confrontantes de acordo com a IT 30;

2) Planta de situação do comércio de explosivos em relação a sua circunvizinhança, num raio necessário para afastamento de segurança, aferidos a partir das paredes laterais e das frontais da edificação;

3) Quantidade de fogos armazenados e suas classificações;

4) Planta baixa e de corte da edificação, contendo leiaute interno, disposição e detalhes das prateleiras;

5) Sinalização de emergência.

w. Segurança contra incêndio para heliponto e heliporto (IT 31):

1) Sinalização do heliponto, conforme Instrução Técnica 31;

2) Capacidade de carga do heliponto;

3) Bomba de abastecimento, em heliportos;

4) Tanque de abastecimento, em heliportos;

5) Tipo de tanque, produto armazenado, volume, ponto de fulgor, diâmetro e altura do tanque;

6) Equipamentos de segurança contra incêndio (extintores de incêndio, bombas de incêndio, esguichos reguláveis e lançadores de espuma, proporcionadores, canhões-monitores, aspersores, câmaras de espuma, registro de recalque, dentre outros);

7) Volume do líquido gerador de espuma (LGE), se houver exigência;

8) Especificações dos equipamentos considerados no cálculo;

9) Catálogos dos equipamentos de proteção contra incêndio projetados;

10) Sistemas de contenção e drenagem;

11) Dimensões das bacias de contenção e respectivos volumes;

12) Esquema isométrico da tubulação envolvida no cálculo, com os diâmetros, comprimentos dos trechos, pontos de equilíbrio de pressão.

x. Produtos perigosos em edificações e áreas de risco (IT 32):

1) Centro de monitoramento ou a guarita;

2) Tipo, quantidade e local de armazenamento ou manipulação.

y. Cobertura de sapé, piaçava e similares (IT 33):

1) Tipo de cobertura utilizada;

2) Afastamentos dos limites do terreno e de postos de abastecimento de combustíveis, gases inflamáveis, fogos de artifício ou seus depósitos;

3) Localização de fogões, coifas e similares;

4) Localização da central de GLP (quando houver).

z. Hidrante urbano (IT 34):

1) Posicionamento dos hidrantes;

2) Vazão dos hidrantes;

aa. Túnel rodoviário (IT 35):

1) Interligação dos túneis paralelos (quando houver);

2) Sistema de exaustão e controle de fumaça (quando houver);

3) Áreas de refúgio (quando houver);

4) Rotas de fuga e as saídas de emergência;

5) Medidas de segurança contra incêndio adotadas;

6) Sistema de drenagem de líquidos e bacias de contenção;

7) Sistema de comunicação interna;

8) Sistema de circuito interno de televisão.

ab. Pátio de contêiner (IT 36):

1) Áreas de segregação de cargas e respectivas proteções.

ac. Subestação elétrica (IT 37):

1) Áreas dos reatores, transformadores e reguladores de tensão;

2) Paredes corta-fogo de isolamento de risco;

3) Dimensões da bacia de contenção;

4) Sistema de drenagem do óleo isolante e caixa separadora de óleo e água;

5) Sistema de água nebulizada, para subestação compartilhada.

ad. Segurança contra incêndio em cozinha profissional (IT 38):

1) Dutos de exaustão;

2) Sistema fixo de extinção a ser instalado, quando for o caso.

ae. Inspeção em instalações elétricas de baixa tensão (IT 41):

1) Quadro resumo das medidas de segurança, contendo nota esclarecendo o atendimento da Instrução Técnica 41 – Inspeção visual em instalações elétricas de baixa tensão.

5.2.4 Apresentação do Projeto Técnico para avaliação junto ao CBPMESP

5.2.4.1 O processo de segurança contra incêndio para licenciamento das edificações e áreas de risco tem início com a solicitação do Responsável no sistema VFB para análise ou da vistoria do Projeto Técnico.

5.2.4.2 Os documentos que compõem o Projeto Técnico devem ser inseridos no sistema VFB mediante upload, atendendo às exigências quanto ao formato de arquivo e assinaturas.

5.2.4.3 A planta das medidas de segurança contra incêndio, no formato eletrônico, deve atender rigorosamente a forma estabelecida no subitem 5.4.2.20, sendo o arquivo apresentado mediante upload no sistema VFB, no padrão “.dwf

5.2.4.4 Antes do envio do arquivo no padrão “.dwf” pelo portal VFB, recomenda-se sua visualização prévia, a fim de verificar inconsistências quanto à escala adequada para análise, desenhos incompletos, linhas, números e palavras legíveis ao serem submetidas ao zoom máximo.

5.2.4.5 Todos os demais documentos, tais como memoriais, laudos, declarações e atestados diversos, devem conter a assinatura do Responsável ou da empresa responsável pela elaboração do projeto (desde que comprovado o vínculo com o responsável técnico), para envio mediante upload, em formato “.pdf”.

5.2.4.6 Os arquivos eletrônicos devem ser nomeados de acordo com seu tipo, por exemplo “Memorial de cálculo de hidrantes”, “Memorial industrial”, “Memorial de cálculo populacional” etc., sem constar nenhuma outra indicação.

5.2.4.7 Os documentos que necessitam passar pelo processo de digitalização devem ser escaneados em preto e branco, com resolução de 200 dpi (dots per inch), “salvos” no formato Tagged Image File Format (“.tiff”) para “.pdf”.

5.2.4.7.1 Caso o documento não fique legível, efetuar a digitalização em tons de cinza com resolução de 150 dpi, salvando a imagem no formato Joint Photographic Experts Group (“.jpeg”) para “.pdf”.

5.2.4.8 Documentos digitalizados em cores, como fotos, podem ser escaneados no tamanho da imagem utilizando-se a resolução de 150 dpi e salvando a imagem no formato “.jpeg” para “.pdf”.

5.2.4.9 As folhas que integram os documentos devem ser tamanho A-4 ou ofício.

5.2.4.10 Para fins de reconhecimento da documentação, no momento do upload, o Responsável deve selecionar corretamente o “tipo de documento” no sistema.

5.2.4.11 O protocolo de análise será gerado e disponibilizado para impressão somente após confirmados os documentos apresentados mediante upload (plantas, comprovante de responsabilidade técnica etc.) pelo sistema VFB.

5.2.4.12 A taxa de análise do PT deve ser calculada de acordo com a área delimitada a ser ocupada pelas edificações e todas as áreas de risco, tais como: áreas de contenção que delimitam a área de contenção do armazenamento externo, áreas de depósitos de materiais combustíveis em áreas abertas e pátios de contêineres.

5.2.4.13 O Serviço de Segurança Contra Incêndio (SSCI) dispõe do prazo máximo de 30 (trinta) dias úteis para analisar o Projeto Técnico.

5.2.4.14 O não atendimento dos procedimentos e das configurações disciplinadas no item 5.4.3 e o envio de arquivos com informações incompletas ou não pertinentes ao processo de segurança contra incêndio pode ensejar apontamentos de irregularidades no procedimento de análise.

5.2.4.15 O Projeto Técnico deve ser analisado conforme ordem cronológica de entrada.

5.2.4.16 A ordem cronológica pode ser alterada para o atendimento das ocupações temporárias ou por interesse da administração pública, conforme a complexidade de cada caso e mediante a anuência do Chefe do Departamento de Segurança e Prevenção Contra Incêndio (DSPCI).

5.2.4.17 Os Projetos Técnicos de edificações com ocupações complexas podem, excepcionalmente, serem analisados em prazo superior.

5.2.4.18 Durante a análise, se o Projeto Técnico necessitar de soluções técnicas diversas daquelas previstas no regulamento de segurança contra incêndio, o processo pode ser encaminhado pelo SSCI para análise mediante Comissão Técnica Ordinária (CTO).

5.2.4.19 A critério do SSCI as aprovações das análises nos processos de segurança contra incêndio podem ser efetivadas acompanhadas de orientações técnicas, desde que não comprometam a conferência das medidas de segurança contra incêndio em vistoria técnica.

5.2.4.20 O parecer de aprovação de análise será disponibilizado no sistema VFB, e o Responsável cientificado por mensagem eletrônica para os endereços cadastrados no processo.

5.2.4.21 O CBPMESP não faz impressão, edição ou qualquer modificação nas plantas das medidas de segurança contra incêndio apresentadas pelos responsáveis técnicos. O resultado final da análise deve ser apenas a emissão do respectivo parecer no sistema VFB.

5.2.4.22 No caso da não aprovação da análise do Projeto Técnico eletrônico, o sistema VFB excluirá automaticamente todos os documentos, devendo serem reapresentados quando da solicitação do retorno de análise.

5.2.5 Autenticidade do projeto eletrônico

5.2.5.1 O CBPMESP disponibiliza na internet uma ferramenta de consulta pública para que qualquer interessado possa verificar a autenticidade de uma planta eletrônica aprovada.

5.2.6 Anulação da aprovação do Projeto Técnico

5.2.6.1 A anulação da aprovação do Projeto Técnico deve ser motivada pelo Responsável (ou não) quando verificada a ocorrência de falha ou de vício durante o processo de análise.

5.2.6.2 A anulação da aprovação do Projeto Técnico acarreta a invalidação dos atos subsequentes do processo, inclusive a validade das licenças do CB.

5.2.6.3 O rito de anulação será definido em ato normativo expedido pelo Comandante do CBPMESP.

5.2.7 Substituição ou Atualização do Projeto Técnico

5.2.7.1 O Projeto Técnico deve ser substituído quando, em relação à edificação ou área de risco, for verificada:

a. ampliação de área construída que implique redimensionamento dos elementos das saídas de emergência, tais como: tipo e quantidade de escadas, acessos, portas, rampas, lotação e outros;

b. ampliação ou diminuição de área construída que implique redimensionamento do sistema hidráulico de segurança contra incêndio (pressão, vazão, potência da bomba de incêndio, volume da reserva técnica de incêndio etc.);

c. ampliação de área que implique a adoção de nova medida de segurança contra incêndio (medida não prevista anteriormente);

d. alteração nas características de armazenamento e/ou quantidade de líquidos combustíveis e inflamáveis que implique exigência de nova medida de segurança contra incêndio (medida não prevista anteriormente), ou o redimensionamento das medidas existentes;

e. mudança de ocupação, com ou sem agravamento de risco, que implique ampliação das medidas de segurança contra incêndio existentes, ou exigência de nova medida;

f. mudança de leiaute da edificação ou área de risco que implique exigência de nova medida de segurança ou torne ineficaz a medida de segurança prevista no Projeto Técnico existente;

g. aumento da altura da edificação ou área de risco que implique exigência de nova medida de segurança contra incêndio e/ou redimensionamento do sistema hidráulico de segurança contra incêndio existente e/ou saídas de emergência e rotas de fuga;

h. várias ampliações ou diversas alterações que impliquem acúmulo de plantas e de documentos que dificultam a compreensão e o manuseio do Projeto Técnico por parte do SSCI, decisão a critério do Comandante da Unidade Operacional (UOp/CB) responsável pelo atendimento da região ou ao Chefe do Estado Maior do Comando de Bombeiros Metropolitano (EM/CBM);

i. projeto técnico em formato físico, mesmo não havendo alteração nas características da edificação (área, altura, ocupação etc.), quando o motivo for devidamente justificado, cabendo a decisão ao Comandante da Unidade Operacional (UOp/CB) responsável pelo atendimento da região ou ao Chefe da Divisão de Atividades Técnicas do Comando de Bombeiros Metropolitano (EM/CBM).

5.2.8 Atualização do Projeto Técnico

5.2.8.1 Alteração técnica ou complementação de informações relativas ao Projeto Técnico aprovado, apresentadas pelo Responsável por meio de documentos para análise e inserção no processo, mediante Formulário para Atendimento Técnico (FAT).

5.2.8.2 Quando se tratar de área ampliada que represente riscos isolados em relação à edificação existente, desde que possua as mesmas medidas de segurança contra incêndio, deve, a área ampliada, atender a legislação atual, e ser regularizada através da apresentação de plantas.

5.2.8.3 São aceitas modificações ou complementações no PT desde que não se enquadrem nos casos de substituição do Projeto Técnico, subitem 5.4.7.

5.3 Projeto Técnico Simplificado

5.3.1 O Projeto Técnico Simplificado (PTS) deve ser regulado pela Instrução Técnica 42, aplicando-se subsidiariamente os procedimentos dessa IT, no que couber.

5.4 Projeto Técnico para Ocupação Temporária (PTOT)

5.4.1 Ocupação temporária deve ser regularizada por meio de PTOT, classificando-se a ocupação da divisão “F-7”, exceto os casos de ocupação temporária realizada em edificação permanente, que deve ser regularizada mediante PTOTEP, conforme subitem 5.7.

5.4.2 O prazo máximo de vigência da licença do CB deve ser até 90 (noventa) dias, prorrogável uma única vez, por igual período.

5.4.3 Para as ocupações “Circos” e “Parques de diversões”, o prazo máximo de vigência da licença do CB pode ser até 180 (cento e oitenta) dias, prorrogável por igual período. (NR Portaria nº CCB-004/800/2025)

5.4.3.1 O PTOT aprovado em análise será válido em todos os municípios do estado, desde que mantidas as mesmas características da aprovação, sendo necessário apenas cumprir as exigências de documentos para vistoria, conforme o subitem.

5.4.4 A ocupação temporária localizada em área externa de uma edificação permanente pode ser regularizada com a apresentação de processo independente, desde que confirmadas as condições de isolamento de risco, de acordo com a Instrução Técnica 07.

5.4.4.1 Não sendo comprovado o isolamento de risco, deve-se exigir também a licença do CB da edificação permanente.

5.4.5 A ocupação temporária térrea, situada em áreas abertas, tais como: praças públicas, vias públicas, parques públicos ou outras áreas similares, que não possuir delimitação de área por barreira física que impeça ou dificulte a livre circulação de pessoas, não deve ser objeto de licenciamento junto ao SSCI.

5.4.5.1 A ocupação temporária que possuir delimitação de área por barreiras físicas deve possuir controle para acesso de público e ser regularizada junto ao SSCI.

5.4.6 O PTOT será aprovado com vigência apenas para o evento e o período definido pelo Responsável no projeto.

5.4.7 Composição

5.4.7.1 Documentos que compõem o PTOT:

a. Formulário de segurança contra incêndio de projeto técnico (Anexo A);

b. Memorial descritivo do evento, devendo conter: nome do evento, data ou período de execução, capacidade de lotação de público, modo de controle de acesso, descritivo do sistema de iluminação de emergência, indicação de realização de evento pirotécnico, utilização de GLP, número da licença do CB para a edificação permanente (se for o caso), entre outros;

c. procuração do proprietário, quando transferir seu poder de signatário;

d. atestado de formação de brigada de incêndio;

e. comprovante de responsabilidade técnica relativo à:

1) elaboração do Projeto Técnico para Ocupação Temporária (PTOT);

2) planta das medidas de segurança contra incêndio ou planta de ocupação temporária

5.4.7.2 A planta eletrônica de ocupação temporária deve conter:

a. a área, com todas as cotas dos perímetros;

b. as larguras das saídas de emergência, em escala padronizada;

c. a lotação máxima da edificação e áreas de risco;

d. a indicação de tudo o que for fisicamente instalado e todas as dependências, áreas de risco, arquibancadas, arenas e outros espaços destinados à permanência de público, instalações, equipamentos, brinquedos de parques de diversões, palcos, centrais de gases inflamáveis, com as medidas de segurança contra incêndio para cada área e risco específico;

e. nota contendo os seguintes dizeres: “A responsabilidade pelo controle de acesso e lotação do recinto, bem como a manutenção das saídas de emergências desimpedidas e desobstruídas, e demais exigências constantes da Instrução Técnica 12, é do Responsável pela organização do evento.”;

f. os símbolos gráficos dos sistemas e dos equipamentos de segurança contra incêndio, na cor vermelha, conforme Instrução Técnica 04;

g. quadro de área e legenda das medidas de segurança contra incêndio projetadas no PTOT.

5.4.8 Apresentação para avaliação junto ao CBPMESP

5.4.8.1 O Projeto Técnico para Ocupação Temporária (PTOT) deve ser protocolado no sistema VFB, conforme item 5.6.

5.4.8.2 Após instaladas as medidas de segurança contra incêndio exigidas no PTOT, o Responsável deve solicitar a vistoria técnica de licenciamento para confirmação quanto ao atendimento das exigências para aprovação e emissão do respectivo AVCB, com vigência somente para o endereço da ocupação no momento da vistoria.

5.4.8.3 Devido à sua peculiaridade, o PTOT deve ser protocolado no sistema VFB para análise do CBM com prazo mínimo de 07 (sete) dias de antecedência.

5.4.8.3.1 O prazo do subitem anterior pode ser inferior a 07 (sete) dias nos casos de interesse da administração pública, mediante a autorização formal do Chefe do Departamento de Segurança e Prevenção Contra Incêndio (DSPCI), ou do Comandante da Unidade Operacional (UOp/CB) responsável pelo atendimento da região, ou do Chefe do Estado Maior do Comando de Bombeiros Metropolitano (EM/CBM).

5.4.8.3.2 A taxa de análise do PTOT deve ser calculada de acordo com a área delimitada a ser ocupada pelo evento, incluindo áreas edificadas, áreas das arenas, dos estandes, de barracas, de arquibancadas, de palcos e similares; além das áreas de concentração de público, piso da arena, área de praças de alimentação, área defronte ao palco etc., excluindo-se apenas as áreas destinadas aos estacionamentos descobertos.

5.5 Projeto Técnico de Ocupação Temporária em Edificação Permanente (PTOTEP)

5.5.1 Ocupações do grupo “F” para eventos temporários localizados no interior de edificações permanentes devem ser regularizadas mediante PTOTEP.

5.5.2 As medidas de segurança contra incêndio para ocupações temporárias em edificações permanentes devem ser previstas em atendimento às exigências para a divisão “F-7”.

5.5.3 A aprovação do PTOTEP terá vigência apenas para o evento e período específico.

5.5.3.1 O prazo máximo de vigência da licença do CB deve ser 30 (trinta) dias, prorrogável uma única vez, por igual período.

5.5.3.2 A edificação e área de risco permanente deve atender às exigências de medidas de segurança contra incêndio previstas no regulamento de segurança contra incêndio, para sua ocupação (principal ou mista), acrescidas das exigências para a ocupação temporária.

5.5.3.3 As edificações e áreas de risco permanentes devem estar regularizadas junto ao CBPMESP.

5.5.4 Composição

5.5.4.1 Conforme subitens 5.4.2 e 5.6.7.

5.5.5 Apresentação do procedimento para avaliação junto ao CBPMESP

5.5.5.1 Conforme subitens 5.4.4 e 5.6.8.

5.6 Disposições gerais para apresentação de Projeto Técnico

5.6.1 Cada medida de segurança contra incêndio deve ser dimensionada conforme o critério existente em uma única norma.

5.6.1.1 É vedada a utilização de critérios e parâmetros de dimensionamento diversificados em mais de um texto normativo para uma mesma medida de segurança contra incêndio.

5.6.2 A medida de segurança contra incêndio adicional, ou seja, aquela não exigida pelo Regulamento de Segurança contra Incêndio das edificações e áreas de risco, não deve ser objeto de análise pelo SSCI quanto ao seu dimensionamento, não podendo interferir nos demais sistemas exigidos.

5.6.3 Os modelos de documentos indicados nas IT devem ser adotados para apresentação dos Projetos Técnicos.

5.6.3.1 É permitida a fotocópia e a reprodução dos documentos por meios eletrônicos, dispensando-se os símbolos e os brasões neles contidos.

5.6.3.2 Quando da emissão de um parecer de análise, “comunicado” pelo SSCI, o Responsável deve apresentar resposta circunstanciada mediante carta-resposta para cada item, esclarecendo as providências adotadas, e solicitar reanálise do PT até a sua aprovação.

5.6.3.3 O pagamento da taxa de análise possibilita a realização de quantos protocolos de retorno forem necessários no período de 02 (dois) anos, a contar da data de emissão do primeiro parecer de análise “comunicado”. (NR Portaria nº CCB-004/800/2025)

5.6.4 O PT existente pode apresentar a simbologia indicada na época da aprovação pelo SSCI.

6 Procedimentos para Licenciamento

6.1 Solicitação de vistoria

6.1.1 A vistoria técnica de regularização do SSCI é realizada mediante solicitação do Responsável, após a apresentação dos documentos constantes no item 6.2.

6.1.1.1 Quando se tratar de um condomínio, o signatário (Responsável) deve ser o síndico ou o administrador profissional.

6.1.2 A planta eletrônica aprovada no CBPMESP deve ser disponibilizada ao agente vistoriador por meio do sistema VFB.

6.1.3 O Responsável deve solicitar a vistoria no portal VFB e anexar a documentação de forma eletrônica por meio de upload no sistema.

6.1.3.1 Os arquivos eletrônicos devem ser nomeados de acordo com seu tipo, por exemplo: comprovante de responsabilidade técnica de instalação e/ou de manutenção das medidas de segurança contra incêndio; comprovante de responsabilidade técnica de instalação e/ou de manutenção dos sistemas de utilização de gases inflamáveis; e outros previstos no item 6.2.

6.1.3.2 A solicitação da vistoria técnica de licenciamento ao SSCI do CBPMESP deve ser precedida de criteriosa e detalhada inspeção visual, além de ensaio dos sistemas de segurança contra incêndio realizada pelo Responsável, que atestará a instalação ou manutenção, de acordo com as normas técnicas vigentes, acompanhado de comprovante de responsabilidade técnica (item 6.2 dessa IT).

6.1.3.3 O Responsável que inserir os dados no sistema VFB assume a responsabilidade pela veracidade das informações.

6.1.3.4 Caso o Responsável desconheça o número do Projeto Técnico, pode solicitar informações ao SSCI mediante Formulário para Atendimento Técnico – Consultivo (FAT-C), disponível no sistema VFB.

6.1.3.5 A taxa referente à vistoria deve ser recolhida por meio de Documento de Arrecadação de Receitas Estaduais (DARE) gerado no próprio sistema VFB, sendo considerada a área construída e/ou área de risco especificada no Projeto Técnico.

6.1.4 No caso de ocupação temporária, conforme subitens 5.6 e 5.7, a taxa referente à vistoria deve ser calculada de acordo com a área delimitada a ser ocupada, incluindo as áreas edificadas, arenas, estandes, barracas, arquibancadas, palcos e similares, excluindo-se as áreas destinadas a estacionamentos descobertos.

6.1.5 O pagamento de taxas realizado através do Documento de Arrecadação de Receitas Estaduais (DARE) que apresentar irregularidades de quitação junto ao SSCI deve ter seu processo de vistoria interrompido.

6.1.5.1 O processo de vistoria deve ser reiniciado quando a irregularidade for sanada, mediante solicitação do Responsável.

6.1.6 A vistoria parcial é permitida em edificações e áreas de risco nas seguintes situações:

a. edificações que possuam isolamento de risco, conforme parâmetros da Instrução Técnica 07 – Separação entre edificações (isolamento de risco);

b. Edificações térreas, desde que a área parcial a ser vistoriada possua compartimentação em relação a área em construção ou reforma, conforme parâmetros da Instrução Técnica 09, e saídas de emergência independentes;

c. Edificações com mais de um pavimento, desde que a área a ser vistoriada inclua o nível de descarga e os pavimentos consecutivos, deve ser compartimentada em relação à área em construção ou reforma, conforme parâmetros da Instrução Técnica 09;

d. Para as ocupações da divisão “C-3” (“Shopping center”), as exigências das medidas de segurança necessárias para execução de vistoria parcial, referentes às lojas não ocupadas ou em obra (inacabadas), devem seguir os seguintes parâmetros:

1) Lojas que possuírem área menor ou igual a 300 m² devem permanecer sem carga de incêndio e possuir fechamentos com materiais incombustíveis, tais como: chapas metálicas, gesso acartonado “standard” etc.;

2) Lojas que possuírem área maior que 300 m² devem permanecer sem carga de incêndio e possuir fechamentos com materiais resistentes ao fogo (TRRF) por 60 minutos.

6.1.7 Para solicitação de vistoria parcial o Responsável deve informar a área a ser vistoriada, por intermédio de Formulário para Atendimento Técnico (FAT), no sistema VFB.

6.1.8 O pagamento da taxa para vistoria parcial deve corresponder à área solicitada.

6.1.9 Quando da vistoria em edificação ou área de risco que possua critério de isolamento de risco mediante parede corta-fogo, a vistoria deve ser executada nos ambientes que delimitam a parede corta-fogo no mesmo lote e que tenham medidas de segurança contra incêndio independentes.

6.1.10 As vistorias técnicas devem ser realizadas conforme ordem cronológica de protocolo de entrada.

6.1.11 A ordem cronológica pode ser alterada para o atendimento das ocupações temporárias ou por interesse da administração pública, conforme a complexidade de cada caso e mediante a anuência Chefe do Departamento de Segurança e Prevenção Contra Incêndio (DSPCI), ou do Comandante da Unidade Operacional (UOp/CB) responsável pelo atendimento da região, ou do Chefe do Estado Maior do Comando de Bombeiros Metropolitano (EM/CBM).

6.1.12 A critério do SSCI, as vistorias técnicas de licenciamento podem ser aprovadas com orientações ou exigências técnicas, desde que não comprometam o desempenho de cada medida de segurança contra incêndio exigida para a edificação ou área de risco.

6.1.13 Devido à peculiaridade do tipo de ocupação passível de ser regularizada mediante Projeto Técnico de Ocupações Temporárias e Projeto Técnico de Ocupação Temporária em Edificação Permanente, a solicitação de vistoria deve ser protocolada no CBPMESP, com antecedência mínima de até 2 (dois) dias úteis em relação à data de início do evento.

6.2 Documentos necessários para a vistoria técnica de licenciamento de acordo com o risco e/ou medida de segurança existente na edificação e área de risco

6.2.1 Comprovante de responsabilidade técnica:

a. de instalação e/ou de manutenção das medidas de segurança contra incêndio;

b. de instalação e/ou de manutenção dos sistemas de utilização de gases inflamáveis (central, rede, medidores, demais componentes e equipamentos);

c. de instalação e/ou manutenção do grupo motogerador;

d. de conformidade das instalações elétricas, conforme Instrução Técnica 41;

e. de instalação e/ou manutenção do controle do material de acabamento e revestimento, quando não for de classe I;

f. de instalação e/ou manutenção do revestimento dos elementos estruturais protegidos contra o fogo;

g. de instalação e/ou manutenção do sistema de pressurização de escadas;

h. de instalação e/ou manutenção do sistema de hidrantes ou mangotinhos;

i. de instalação e/ou manutenção do sistema de chuveiros automáticos;

j. de inspeção e/ou manutenção de vasos sob pressão;

k. de instalação e/ou manutenção da compartimentação vertical de shaft e de fachada envidraçada ou similar;

l. dos sistemas de controle de temperatura, de despoeiramento e de explosão, para silos;

m. da licença de funcionamento para instalações radioativas, nucleares ou de radiografia industrial, ou qualquer instalação que trabalhe com fontes radioativas. Documento emitido pela Comissão Nacional de Energia Nuclear (CNEN), autorizando o funcionamento da edificação e área de risco;

n. de aplicação de lona de cobertura de material específico, conforme determinado na Instrução Técnica 10, para ocupação com lotação superior a 100 (cem) pessoas;

o. de instalação e estabilidade das arquibancadas e arenas desmontáveis;

p. de instalações dos brinquedos de parques de diversão;

q. de instalação e estabilidade dos palcos;

r. de instalação e estabilidade das armações de circos;

s. de montagens mecânicas ou eletroeletrônicas;

t. de outros sistemas, quando solicitados pelo SSCI.

6.2.1.2 O comprovante de responsabilidade técnica deve ser emitido para os serviços específicos de instalação e/ou manutenção das medidas de segurança contra incêndio previstas na edificação e área de risco.

6.2.1.2.1 O comprovante de responsabilidade técnica de instalação é exigido na solicitação da primeira vistoria técnica de licenciamento.

6.2.1.2.2 O comprovante de responsabilidade técnica de manutenção é exigido na renovação da licença do CBPMESP.

6.2.1.3 Quando houver apenas um responsável técnico pelas medidas de segurança contra incêndio, pode ser emitido apenas um comprovante de responsabilidade técnica.

6.2.1.4 Para os casos de mais de um responsável técnico pelas medidas de segurança contra incêndio, podem ser emitidos vários comprovantes de responsabilidade técnica, desmembrados conforme limite de competência de cada profissional e o serviço específico.

6.2.1.4.1 O comprovante de responsabilidade técnica deve ser digitalizado para envio mediante upload, em formato “.pdf”.

6.2.1.4.2 Em caso de não aceitação de comprovante de responsabilidade técnica por estar incorreta ou sem vigência, o documento será excluído, devendo ser realizado o upload do novo arquivo.

6.2.2 Atestado de formação de brigada de incêndio

6.2.2.1 Documento que atesta que os ocupantes da edificação receberam treinamentos teóricos e práticos de segurança e prevenção contra incêndio.

6.2.3 Memorial de segurança contra incêndio das estruturas

6.2.3.1 Para as condições descritas na Instrução Técnica 30 quanto à resistência das paredes e elementos estruturais, para o comércio ou o armazenamento de fogos de artifício.

6.2.4 Cópia da carteira de “Blaster” Pirotécnico, responsável pelo planejamento, supervisão e/ou execução do espetáculo pirotécnico, bem como o uso de equipamentos similares (exemplo: máquina de fogo, entre outros).

6.2.5 O responsável técnico deve elaborar um relatório técnico declaratório, quando disponibilizado pelo VFB, o qual atestará, com base em vistoria minuciosa in loco, a conformidade das características e condições das medidas de segurança com os requisitos estabelecidos.

6.2.6 Os demais documentos devem ser entregues ao SSCI no decorrer da tramitação dos procedimentos para a obtenção do AVCB, mediante upload no sistema VFB.

6.2.7 A não apresentação de documentação exigida em vistorias técnicas com o parecer aprovado, no prazo de até 30 dias, acarreta a alteração do status “Aguardando documentação” no sistema VFB para “Comunicada”.

6.2.7.1 O usuário deve apresentar a documentação posteriormente por meio de FAT (Formulário de Atendimento Técnico).

6.2.7.2 Caso a documentação não seja apresentada no prazo de até 1 (um) ano, será necessário solicitar nova vistoria técnica, mediante novo pagamento de taxa.

6.3 Durante a vistoria técnica de licenciamento

6.3.1 Deve haver pessoa habilitada com conhecimento do funcionamento das medidas de segurança contra incêndio para que possa manuseá-las quando da realização da vistoria.6.3.2 Durante a realização de vistoria, constatada uma ou mais das alterações constantes do item 5.4.7, tal fato deve implicar a apresentação de novo Projeto Técnico.

6.3.3 Durante a realização de vistoria, constatada uma ou mais das alterações constantes do item 5.4.8, tal fato deve implicar a atualização do Projeto Técnico.

6.3.4 Nos casos de Projeto Técnico regido por legislação anterior a 11/03/1983, constatada durante vistoria a existência de medidas de segurança contra incêndio instaladas na edificação ou área de risco que não foram previstas no Projeto Técnico original, mas que seja possível realizar a avaliação quanto ao atendimento das exigências de segurança contra incêndio vigentes à época, o AVCB deve ser emitido mediante a apresentação do “Termo de compromisso do Responsável” (Anexo J) para apresentação de novo Projeto Técnico, atendendo o prescrito na IT 43.

6.3.5 Quando constatado em vistoria que o Projeto Técnico possui alguma irregularidade passível de anulação de aprovação de análise, o agente vistoriador deve anotar a irregularidade e solicitar ao SSCI local o envio do Projeto Técnico para o DSPCI, que deliberará sobre o caso.

6.3.6 Durante a realização da vistoria, todos os itens verificados devem ser anotados e registrados no sistema VFB (parecer de vistoria técnica “comunicado”), a fim de ser possibilitado diretamente ser consultado pelo Responsável.

6.3.7 A solicitação de retorno de vistoria deve ser realizada diretamente no portal do sistema VFB.

6.3.8 O Responsável deve apresentar suas argumentações por meio do Formulário para Atendimento Técnico (FAT), devidamente fundamentadas nas referências normativas, quando houver discordância do parecer de vistoria emitido pelo agente vistoriador, ou havendo a necessidade de licenciamento.

6.3.9 As medidas de segurança contra incêndio não previstas no Projeto Técnico, mas que se encontram instaladas na edificação ou área de risco, podem ser aceitas como “medidas adicionais de segurança”, desde que não ocorra interferência no dimensionamento das medidas exigidas para o Projeto Técnico.

6.3.9.1 As medidas adicionais não precisam atender os parâmetros previstos em normas, porém, se não for possível avaliar no local da vistoria a interferência da medida adicional, o Responsável deve esclarecer por meio de Formulário para Atendimento Técnico (FAT), qual a medida adotada para avaliação no SSCI.

6.4 Emissão do Auto de Vistoria do Corpo de Bombeiros (AVCB)

6.4.1 Após a realização da vistoria com a devida aprovação pelo agente vistoriador, o SSCI deve emitir o respectivo Auto de Vistoria do Corpo de Bombeiros (AVCB) para a edificação e áreas de risco.

6.4.2 O responsável técnico que deve ter o nome incluso no Auto de Vistoria do Corpo de Bombeiros (AVCB), é o profissional signatário do comprovante de responsabilidade técnica da instalação ou da manutenção das medidas de segurança contra incêndio.

6.4.2.1 Quando houver mais de um responsável técnico pelas medidas de segurança contra incêndios existentes na edificação ou área de risco, será incluído no AVCB o nome de apenas um profissional, conforme subitem anterior.

6.4.3 O AVCB somente pode ser emitido para edificação ou área de risco que tenha todas as medidas de segurança contra incêndio instaladas e em funcionamento, de acordo com o Projeto Técnico aprovado.

6.5 Emissão do Certificado de Licença do Corpo de Bombeiros (CLCB)

6.5.1 Os critérios para emissão do CLCB devem obedecer ao previsto na Instrução Técnica 42 – Projeto Técnico Simplificado (PTS).

6.5.2 Após a emissão do CLCB, o Corpo de Bombeiros pode, a qualquer tempo, realizar fiscalização de acordo com os critérios estabelecidos pelo SSCI.

6.6 Prazos de vigência das licenças AVCB e CLCB

6.6.1 As licenças do CB terão prazo de vigência de acordo com o Anexo K, salvo nas condições abaixo: (NR Portaria nº CCB-004/800/2025)

6.6.1.1 Para Projeto Técnico de Ocupação Temporária (PTOT) o prazo de vigência do AVCB deve ser o indicado para a realização do evento, não podendo ultrapassar o prazo de 90 (noventa) dias, prorrogável uma vez, por igual período, e somente deve ser válido para o endereço onde foi efetuada a vistoria.

6.6.1.2 Para Projeto Técnico de Ocupação Temporária em Edificação Permanente (PTOTEP), o prazo de vigência do AVCB deve ser o indicado para a realização do evento, não podendo ultrapassar o prazo de 30 (trinta) dias, prorrogável uma vez, por igual período.

6.6.1.3 Para edificações ou áreas de risco desabitadas e que não possa ser fornecido o atestado de formação de brigada contra incêndio, o AVCB terá vigência de 01 (um) ano.

6.6.1.4 O Auto de Vistoria do Corpo de Bombeiros (AVCB) terá sua validade estendida em 1 (um) ano além do prazo estipulado no Anexo K (Tabela de prazos de vigência das licenças emitidas pelo CBPMESP), desde que, no protocolo de vistoria que deu origem ao AVCB, sejam anexados documentos vigentes, conforme especificado abaixo:

a. Atestado de credenciamento em Organismo de Cooperação Mútua (OCM) emitido pelo CBPMESP; ou

b. Certificado ISO 14.001 ou norma similar, internacionalmente reconhecida, que ateste a responsabilidade ambiental no desenvolvimento de suas atividades (conforme a IT 44).

6.6.1.4.1 A solicitação de prorrogação deve ser realizada por meio de FAT, antes do término da vigência da licença, devendo anexar junto ao pedido a documentação comprobatória e o comprovante de pagamento da taxa de vistoria de licenciamento.

6.6.1.4.1 Pelo período de 180 dias a contar da publicação desta IT, a extensão da vigência da licença do CB poderá ser solicitada, desde que:

a. a solicitação seja realizada por meio de FAT;

b. a licença ainda esteja vigente;

c. o interessado apresente um dos documentos elencados nas letras “a” e “b” do item 6.6.1.4;

d. o comprovante de responsabilidade técnica referente à manutenção das medidas de segurança contra incêndio seja apresentado;

e. a extensão da vigência da licença seja por até mais 01 (um) ano, a contar do término da vigência da licença do CB original; e

f. o deferimento da extensão seja feito após vistoria técnica de fiscalização no local. (NR Portaria Nº CCB – 004/800/2025)

6.6.2 O prazo da licença emitida pelo CBPMESP deve ser estabelecido em razão da ocupação predominante da edificação ou área de risco.

6.7 Anulação, cancelamento e retificação de licença

6.7.1 Cancelamento e retificação

6.7.1.1 A licença do CB pode ser cancelada por solicitação do Responsável ou de ofício pela Administração, quando forem identificadas inconformidades ou erros nos dados constitutivos das licenças.

6.7.1.1.1 Uma nova licença do CB deve ser emitida após o cancelamento, com o mesmo prazo de vigência da licença cancelada.

6.7.1.2 O pedido de cancelamento com proposta de retificação de dados deve ser realizado pelo Responsável no sistema VFB por meio de FAT.

6.7.2 Anulação

6.7.2.1 A anulação da licença do CB deve ser realizada quando constatada a ocorrência de falha ou de vício durante o processo de análise ou de vistoria, motivada ou não pelo Responsável.

6.7.2.2 O rito de anulação será definido em ato normativo expedido pelo Comandante do CBPMESP.

6.8 Prazo para realização de vistoria

6.8.1 O SSCI tem o prazo máximo de 30 (trinta) dias úteis para a realização da vistoria técnica de licenciamento.

6.9 Disposições gerais da vistoria técnica de licenciamento

6.9.1 Para renovação do AVCB ou CLCB, o Responsável deve solicitar nova vistoria junto ao SSCI.

6.9.2 As alterações de dados referentes ao Projeto Técnico, que não impliquem substituição, devem ser apresentadas mediante FAT, juntamente com cópias de documentos que comprovem o teor da solicitação.

6.9.3 O Responsável deve solicitar a renovação do AVCB ou do CLCB diretamente no portal VFB.

6.9.4 A vistoria técnica de renovação da licença, presencial ou por meios eletrônicos, pode ser realizada a qualquer momento, posteriormente ou por amostragem, de acordo com critérios de risco definidos pelo CBPMESP.

6.9.5 O pagamento de taxa de vistoria corresponde ao serviço de realização de uma vistoria e um retorno caso sejam constatadas irregularidades pelo agente vistoriador.

6.9.6 O prazo máximo para solicitação do retorno de vistoria é 01 (um) ano, iniciado a contar da data de emissão do parecer de vistoria técnica “comunicado”, emitido pelo agente vistoriador.

6.9.6.1 Transcorrido o prazo de 01 (um) ano, deve ser exigido o recolhimento de nova taxa.

6.9.6.2 Não deve ser recolhida nova taxa quando o retorno de vistoria for ocasionado pelo SSCI.

6.9.7 A licença do Corpo de Bombeiros (AVCB, CLCB ou TAACB) deve ser mantida afixada na entrada principal da edificação, em local de fácil visualização pelo público.

6.9.8 A planta de risco de incêndio deve permanecer afixada na entrada da edificação, portaria ou recepção, nos pavimentos de descarga e junto ao hall nos demais pavimentos, de forma que seja visualizada pelos ocupantes da edificação e equipes do CBPMESP, em caso de emergência.

7 Solicitação de vistoria por Autoridade Pública

7.1 A solicitação de vistoria de fiscalização pode ser encaminhada ao CBPMESP por autoridade da administração pública.

7.2 A solicitação pode ser feita via ofício, contendo timbre do órgão público, o endereço da edificação ou da área de risco, o endereço e o telefone do órgão solicitante, a motivação do pedido e a identificação do funcionário público signatário.

8 Formulário para Atendimento Técnico (FAT)

8.1 O Formulário para Atendimento Técnico (FAT) é o meio de comunicação formal entre o Responsável pela edificação ou área de risco e o SSCI do CBPMESP.

8.2 O Formulário para Atendimento Técnico deve ser utilizado:

a. para solicitação de substituição ou retificação de dados da licença do CB;

b. para solicitação de retificação de dados do Projeto Técnico ou Projeto Técnico Simplificado;

c. para solicitação de revisão de ato praticado pelo SSCI (pareceres de vistorias);

d. para atualização de Projeto Técnico;

e. outras situações a critério do SSCI.

8.2.1 O Responsável, quando do preenchimento do FAT, deve propor questão específica sobre casos concretos.

8.2.1.1 Dúvidas genéricas devem ser apresentadas mediante um Formulário para Atendimento Técnico – Consultivo (FAT-C).

8.2.2 A taxa referente ao FAT deve ser recolhida por meio de Documento de Arrecadação de Receitas Estaduais (DARE) gerado pelo sistema VFB.

8.3 Competência

8.3.1 Podem fazer uso do FAT os seguintes Responsáveis:

a. proprietário;

b. responsável pelo uso;

c. procurador;

d. responsável técnico.

8.3.2 O profissional instituído como Responsável de um processo pode ser substituído durante o seu andamento, desde que seja comprovada a anuência do proprietário e/ou responsável pelo uso, acompanhada do respectivo comprovante de responsabilidade técnica.

8.3.3 A solicitação do Responsável deve ser feita no portal VFB, acompanhada dos documentos que comprovem a argumentação apresentada e a competência do solicitante.

8.3.3.1 Quando se tratar de um condomínio, o signatário (Responsável) deve ser o síndico ou o administrador profissional.

8.3.4 No caso de FAT de projeto eletrônico com necessidade de envio de plantas, o Responsável deve apresentar somente as plantas referentes ao objeto do pedido, não havendo necessidade de apresentação de todas as plantas do processo.

8.3.4.1 A planta do FAT em formato eletrônico deve atender rigorosamente à forma estabelecida no item 5.4.3 para upload no sistema VFB.

8.3.4.1.1 Antes do envio do arquivo no padrão “.dwf” pelo portal VFB, recomenda-se sua visualização prévia, a fim de verificar inconsistências quanto à escala adequada para análise, desenhos incompletos, linhas, números e palavras legíveis ao serem submetidas ao zoom máximo.

8.3.4.2 Todos os demais documentos, tais como memoriais, laudos, declarações e atestados diversos, devem conter a assinatura do Responsável ou da empresa responsável pela elaboração do projeto (desde que comprovado o vínculo com o responsável técnico), para envio mediante upload, em formato “.pdf”.

8.3.4.3 Os arquivos eletrônicos devem ser nomeados de acordo com seu tipo, por exemplo “Memorial de cálculo de hidrantes”, “Memorial industrial”, “Memorial de cálculo populacional” etc., sem constar nome de empresa ou outra indicação.

8.3.4.4 Em caso de indeferimento do FAT, o documento que não for aprovado será excluído automaticamente e, em caso de nova solicitação, deve ser reapresentado para análise, permanecendo no sistema o documento após a aprovação, bem como o histórico das solicitações do Responsável.

8.3.4.5 No caso de deferimento de FAT, verificada a ampliação de área, a diferença deve ser complementada em razão de atualização do Projeto Técnico.

8.4 Prazo de análise do FAT

8.4.1 A contar da data do protocolo, o SSCI deve responder à solicitação no prazo máximo de 10 (dez) dias úteis, conforme a ordem cronológica de entrada do pedido.

8.4.1.1 A ordem cronológica pode ser alterada para o atendimento das ocupações temporárias, ou por interesse da administração pública, conforme a complexidade de cada caso e mediante a anuência do Chefe do Departamento de Prevenção, Comandante da Unidade Operacional (UOp/CB) responsável pelo atendimento da região ou do Chefe do Estado-Maior do CBM (EM/CBM).

8.4.2 O FAT pode ser encaminhado à instância superior pela autoridade de segurança contra incêndio da origem do processo nos casos de maior complexidade.

8.4.2.1 O prazo para a resposta deve ser de 30 (trinta) dias úteis.

8.5 Formulário para Atendimento Técnico – Consultivo (FAT-C)

8.5.1 O Formulário para Atendimento Técnico – Consultivo (FAT-C) deve ser utilizado:

a. para esclarecimentos diversos relacionados a uma única edificação ou área de risco;

b. para dúvidas genéricas que não estejam vinculadas a um Projeto Técnico;

c. para protocolar consultas técnicas.

8.5.2 O Responsável pode protocolar o pedido diretamente no portal VFB.

8.5.3 O Serviço de Segurança Contra Incêndio (SSCI) deve responder os pedidos de esclarecimentos e dúvidas no prazo de 30 (trinta) dias úteis, respeitada a ordem cronológica.

8.5.4 O FAT-C pode ser encaminhado à instância superior pela autoridade de segurança contra incêndio da origem do processo, nos casos de maior complexidade.

9 Comissão Técnica

9.1 A Comissão Técnica é grupo colegiado do SSCI para atuar no assessoramento técnico ou em grau recursal para análise das decisões proferidas nos processos de licenciamento das edificações ou áreas de risco.

9.2 A Comissão Técnica pode ser requerida pelo Responsável devidamente cadastrado no SSCI, nas fases do processo de análise ou de vistoria, ou quando houver necessidade de parecer técnico em casos especiais, como forma de garantir a manutenção de exigências de futuro Projeto Técnico, a exemplo de:

a. solicitação fundamentada para isenção excepcional de medidas de segurança contra incêndio;

b. adoção de parâmetros de dimensionamento de sistemas prescritos em normas internacionais;

c. utilização de novos sistemas construtivos;

d. aplicação de novos conceitos de medidas de segurança contra incêndio;

e. quando houver discordância do Responsável em relação aos “comunique-se” apontadas pelo SSCI, quando esgotadas as argumentações técnicas na fase de análise regulamentar;

f. casos em que o SSCI entenda que, dada a sua peculiaridade ou complexidade, recomenda-se a avaliação por grupo técnico colegiado.

9.3 Competência para solicitar Comissão Técnica

9.3.1 Podem solicitar Comissão Técnica:

a. proprietário;

b. responsável pelo uso;

c. procurador;

d. responsável técnico.

9.3.2 A solicitação do Responsável deve ser realizada no sistema VFB, acompanhada de documentos que comprovem a competência do Responsável e os argumentos apresentados.

9.3.2.1 Quando se tratar de um condomínio, o signatário (Responsável) deve ser o síndico ou o administrador profissional.

9.3.3 No caso de Comissão Técnica, em que haja necessidade de envio de plantas, o usuário deve apresentar somente as plantas em formato eletrônico referentes ao objeto do pedido, não havendo necessidade de apresentação de todas as plantas no processo.

9.3.4 A planta em formato eletrônico a ser avaliada por Comissão Técnica deve atender à forma estabelecida no item 5.2.4, devendo ser feito upload no sistema VFB.

9.3.4.1 Antes de enviar o arquivo no formato “.dwf” pelo portal VFB, recomenda-se a visualização prévia, a fim de verificar possíveis inconsistências quanto à escala adequada para análise, se os desenhos não estão cortados, e se as linhas, números e palavras estão bem legíveis ao serem submetidas ao zoom máximo.

9.3.4.2 Todos os demais documentos, tais como memoriais, laudos, declarações e atestados diversos, devem conter a assinatura do Responsável ou da empresa responsável pela elaboração do projeto (desde que comprovado o vínculo com o responsável técnico), para envio mediante upload, em formato “.pdf”.

9.3.4.3 Os arquivos eletrônicos devem ser nomeados de acordo com seu tipo, sem constar nome de empresa ou outra indicação no documento.

9.3.5 Em caso de indeferimento da Comissão Técnica, o documento que não for aprovado será excluído automaticamente e, em caso de nova solicitação, deve ser reapresentado para análise, permanecendo no sistema o documento após a aprovação, bem como o histórico das solicitações do Responsável.

9.4 Modalidades de Comissão Técnica

9.4.1 São modalidades de Comissões Técnicas:

9.4.1.1 Comissão Técnica Ordinária;

9.4.1.2 Comissão Técnica Recursal dividida em:

a. Comissão Técnica de Primeira Instância (CTPI);

b. Comissão Técnica de Última Instância (CTUI);

9.4.1.3 Comissão Técnica de Autorização para Adequação (CTAA).

9.4.2 Comissão Técnica Ordinária (CTO)

9.4.2.1 A CTO deve ser convocada nos processos de análise de Projeto Técnico, especificamente, para avaliação das medidas de segurança contra incêndios das ocupações que não se encontram previstas na tabela de  “Classificação das Ocupações”, nos casos impostos pelo Regulamento de Segurança Contra Incêndio das edificações e áreas de risco, bem como em situações que, dada a sua complexidade ou peculiaridade, recomenda-se a avaliação por colegiado.

9.4.2.2 O requerimento de CTO deve ser feito pelo analista do Projeto Técnico, com homologação do chefe imediato, e encaminhado para distribuição à Comissão previamente nomeada.

9.4.3 Comissão Técnica de Primeira Instância (CTPI)

9.4.3.1 A CTPI é o instrumento administrativo, em grau de recurso, para revisão de decisão monocrática ou de CTO proferida em assuntos de segurança contra incêndio, sendo convocada, especificamente, para analisar recurso de solução técnica.

9.4.3.2 O requerimento de análise pela CTPI deve ser protocolado diretamente no sistema VFB.

9.4.3.2.1 Da decisão adotada pela CTPI, o Responsável pode requerer reanálise por nova CTPI, desde que apresente argumentação diversa que possa ensejar o processo de revisão.

9.4.3.2.2 Na solicitação de reanálise de CTPI deve ser cobrada nova taxa do SSCI, quando exigido.

9.4.4 Comissão Técnica de Última Instância (CTUI)

9.4.4.1 A CTUI é o instrumento administrativo, em grau de recurso endereçado ao Comandante do CBPMESP, sendo convocada, especificamente, para analisar recurso de CTPI, regulada em expediente próprio.

9.4.4.2 O requerimento de análise pela CTUI deve ser protocolado diretamente no sistema VFB, e todo o processamento deve ocorrer eletronicamente, inclusive a decisão final.

9.4.4.3 Na solicitação de reanálise de CTUI deverá ser cobrada taxa do SSCI, quando exigida.

9.4.5 Comissão Técnica de Autorização para Adequação (CTAA)

9.4.5.1 A CTAA é o instrumento administrativo que tem por objetivo avaliar a concessão de prazo para a implementação das medidas de segurança contra incêndio previstas no Projeto de Segurança contra Incêndio aprovado e deve contemplar, necessariamente, o pedido fundamentado do Responsável para adoção de medidas compensatórias de segurança contra incêndio em conformidade com os objetivos definidos na legislação de segurança contra incêndio do Estado de São Paulo por determinado período.

9.4.5.1.1 A autorização para adequação se destina exclusivamente à implantação de medidas de segurança contra incêndio que impliquem na necessidade de realização de obras e adequações complexas na edificação ou área de risco existente.

9.4.5.1.2 A solicitação deve restringir-se apenas aos itens de irregularidades constatadas na vistoria técnica e que necessitam de prazo para sua adequação.

9.4.5.1.3 Na solicitação de análise em CTAA deve ser cobrada taxa do SSCI, quando exigido.

9.5 Disposições gerais

9.5.1 Os pareceres das Comissões Técnicas são atemporais e podem considerar a evolução tecnológica, as peculiaridades da edificação, as normas internacionais, buscando a melhor saída para manter as condições mínimas de segurança da edificação objeto de análise e a preservação da vida das pessoas, a mitigação de danos patrimoniais e a possibilidade de atuação do CBPMESP em eventual caso de sinistro.

10 Consulta Técnica

10.1 Documento apresentado por qualquer cidadão para esclarecimento sobre à interpretação de assunto específico da regulamentação de segurança contra incêndio e emergências, e respondida pelo CBPMESP.

11 Parecer Técnico

11.1 O Parecer Técnico é um instrumento administrativo do Comandante do CBPMESP, originário de consulta formal, de caráter vinculante, que tem como objetivo padronizar interpretações, procedimentos e esclarecer sobre obscuridade ou divergência observadas na legislação de segurança contra incêndio.

11.2 O Departamento de Segurança e Prevenção Contra Incêndio deve analisar o caso concreto ou a dúvida apresentada, para produzir o Parecer Técnico para a homologação do Comandante do CBPMESP.

11.3 Os Pareceres Técnicos devem estar disponibilizados no portal do “VFB”.

12 Isenção de pagamento de taxa do SSCI

12.1 Estão isentos do pagamento de taxa:

a. os órgãos da Administração Pública direta, autarquias e fundações públicas da União, dos demais Estados e dos Municípios;

b. o Microempreendedor Individual (MEI), referente ao licenciamento da edificação em que se encontra instalado, nos termos do § 3º, do Art. 4º, da Lei Complementar nº 123, de 14 de dezembro de 2006; alterado pela Lei Complementar nº 147, de 07 de agosto de 2014;

c. as autarquias e fundações públicas do Estado;

d. outros que as legislações determinarem.

12.2 As entidades isentas do pagamento de taxa devem encaminhar o pedido ao CBPMESP mediante upload no sistema VFB.

13 Informatização do Serviço de Segurança Contra Incêndio (SSCI)

13.1 O SSCI pode estabelecer novas regras de procedimentos administrativos em razão das atualizações do sistema VFB

14 Procedimentos para Licenciamento da Atividade Econômica

14.1 O licenciamento da atividade econômica deve obedecer a ato normativo específico expedido pelo Comandante do CBPMESP.

15 Referências Normativas e Bibliográficas

BRASIL. Constituição da República Federativa do Brasil, 5 de outubro de 1988, Brasília: Senado Federal, 2016;

_______. Lei Complementar nº 123, de 14 de dezembro de 2006. Institui o Estatuto Nacional da Microempresa e da Empresa de Pequeno Porte; altera dispositivos das Leis nº 8.212 e nº 8.213, ambas de 24 de julho de 1991, da Consolidação das Leis do Trabalho – CLT, aprovada pelo Decreto-Lei nº 5.452, de 1º de maio de 1943, da Lei nº 10.189, de 14 de fevereiro de 2001, da Lei Complementar nº 63, de 11 de janeiro de 1990 e revoga as Leis nº 9.317, de 5 de dezembro de 1996, e nº 9.841, de 5 de outubro de 1999;

SÃO PAULO (Estado). Constituição do Estado de São Paulo, de 5 de outubro de 1989;

_______. Lei n° 616, de 17 de dezembro de 1974. Dispõe sobre a organização básica da Polícia Militar do Estado de São Paulo;

_______. Lei n° 684, de 30 de setembro de 1975. Autoriza o Poder Executivo a celebrar convênios com os municípios sobre serviços de bombeiros;

_______. Lei n° 13.639, de 26 de março de 2018. Cria o Conselho Federal dos Técnicos Industriais, o Conselho Federal dos Técnicos Agrícolas, os Conselhos Regionais dos Técnicos Industriais e os Conselhos Regionais dos Técnicos Agrícolas;

_______. Lei n° 15.266, de 26 de dezembro de 2013, alterada pela Lei nº 16.672, de 02 de março de 2018. Institui procedimentos de licenciamento simplificado para exercício de atividades econômicas no Estado de São Paulo;

_______. Lei n° 17.761, de 25 de setembro de 2023. Institui procedimentos de licenciamento simplificado para exercício de atividades econômicas no Estado de São Paulo;

_______. Lei complementar nº 1.257, de 06 de janeiro de 2015. Institui o Código estadual de proteção contra Incêndios e Emergências e dá providências correlatas;

_______. Decreto nº 63.276, de 15 de março de 2018. Regulamenta o artigo 29 da lei complementar nº 1.257, de 6 de janeiro de 2015, que autoriza a instituição do Fundo Estadual de Segurança contra Incêndios e Emergências – FESIE, e dá providências correlatas;

_______. Decreto nº 69.118, de 09 de dezembro de 2024. Institui o Regulamento de Segurança Contra Incêndio das edificações e áreas de risco no Estado de São Paulo e dá providências correlatas;

_______. Decreto nº 67.979, de 25 de setembro de 2023. Regulamenta dispositivos da Lei federal n° 13.874, de 20 de setembro de 2019 (Declaração de Direitos de Liberdade Econômica), da Lei n°17.530, de 11 de abril de 2022 (Código de Defesa do Empreendedor) e da Lei n° 17.761, de 25 de setembro de 2023, que institui procedimentos de licenciamento simplificado para exercício de atividades econômicas no Estado de São Paulo, para dispor sobre os critérios e os procedimentos para a classificação de risco de atividades econômicas, regras para aprovação tácita e procedimento aplicável à constituição de ambiente regulatório experimental no âmbito do Estado de São Paulo.

_______. CORPO DE BOMBEIROS DA POLÍCIA MILITAR DO ESTADO DE SÃO PAULO (CBPMESP), instruções técnicas. São Paulo, 2018.

ASSOCIAÇÃO BRASILEIRA DE NORMAS TÉCNICAS (ABNT). NBR 6492 Representação de projetos de arquitetura. Rio de Janeiro: ABNT;

_______. NBR 8402 Execução de caractere para escrita em desenho técnico – Procedimento. Rio de Janeiro: ABNT;

_______. NBR 8403 Aplicação de linhas em desenhos – Tipos de linhas – Larguras das linhas – Procedimento. Rio de Janeiro: ABNT;

_______. NBR 10067 Princípios gerais de representação em desenho técnico – Procedimento. Rio de Janeiro: ABNT;

_______. NBR 10068 Folha de desenho – Leiaute e dimensões – Padronização. Rio de Janeiro: ABNT;

_______. NBR 10126 Versão Corrigida 1998: Cotagem em desenho técnico – Procedimento. Rio de Janeiro: ABNT;

_______. NBR 10582 Apresentação da folha para desenho técnico – Procedimento. Rio de Janeiro: ABNT;

_______. NBR 12236 Critérios de projeto, montagem e operação de postos de gás combustível comprimido – Procedimento. Rio de Janeiro: ABNT;

_______. NBR 12298 Representação de área de corte por meio de hachuras em desenho técnico – Procedimento. Rio de Janeiro: ABNT;

_______. NBR 14611 Desenho Técnico: representação simplificada em estruturas metálicas. Rio de Janeiro: ABNT;

_______. NBR ISO 3864-1 Símbolos gráficos – Cores e sinais de segurança. Parte 1: Princípios de design para sinais e marcações de segurança. Rio de Janeiro: ABNT;

CRETELLA Júnior, José. Polícia e Poder de Polícia. Revista de Informação Legislativa, v.22, n. 88, p. 105-128, out/dez. 1985. Disponível em: http://www2.senado.leg.br/bdsf/item/id/181650. Acesso em: 27 Dez. 2018;

DI PIETRO, Maria Sylvia Zanella. Direito Administrativo. 18. ed. São Paulo: Atlas, 2005;

JUSTEN FILHO, Marçal. Curso de Direito Administrativo. 10. ed. São Paulo: Revista dos Tribunais, 2014;

LAZZARINI, Álvaro. Direito administrativo e prevenção de incêndio. Revista de Direito Administrativo, Rio de Janeiro, v. 186, p. 114-132, out. 1991. ISSN 2238-5177. Disponível em: http://bibliotecadigital.fgv.br/ojs/index.php/rda/article/view/44644/47634. Acesso em: 27 Dez. 2018. doi:http://dx.doi.org/10.12660/rda.v186.1991.44644;

_______. Estudos de Direito Administrativo, 2. ed. São Paulo: Editora Revista dos Tribunais, 1999;

MEIRELLES, Hely Lopes. Direito Administrativo Brasileiro. 39. ed. São Paulo: Malheiros, 2013.

Anexo A
Formulário de Segurança Contra Incêndio de Projeto Técnico

 

Anexo B
Planta das medidas de segurança contra incêndio

Anexo B – fl. 1/10 (informativo)

Anexo B – fl. 2/10 (informativo)

Anexo B – fl. 3/10 (informativo)

Anexo B – fl. 4/10 (informativo)

Anexo B – fl. 5/10 (informativo)

Anexo B – fl. 6/10 (informativo)

Anexo B – fl. 7/10 (informativo)

Anexo B – fl. 8/10 (informativo)

Anexo B – fl. 9/10 (informativo)

Anexo B – fl. 10/10 (informativo)

Anexo C
Quadro resumo das medidas de segurança

Anexo D
Implantação

 

Anexo E
Planta de risco de incêndio

 

Anexo F
Planta de instalação e ocupação temporária

 

Anexo G
Memorial industrial de segurança contra incêndio

Anexo H
Memorial básico de construção

Anexo I
Atestado de Brigada de Incêndio

 

Anexo J
Termo de compromisso do Proprietário

Anexo K
Tabela de prazos de vigência das licenças emitidas pelo CBPMESP

Grupo Ocupação/Uso Divisão Descrição Vigência do AVCB ou do CLCB
A Residencial A-1 Habitação unifamiliar 3 (três) anos
A-2 Habitação multifamiliar
A-3 Habitação coletiva
B Serviço de Hospedagem B-1 Hotel e assemelhado 3 (três) anos
B-2 Hotel residencial
C Comercial C-1 Comércio com baixa carga de incêndio 3 (três) anos
C-2 Comércio com média e alta carga de incêndio
C-3 Shopping center
D Serviço profissional D-1 Local para prestação de serviço profissional ou condução de negócio 3 (três) anos
D-2 Agência bancária
D-3 Serviço de reparação (exceto os classificados em G-4)
D-4 Laboratório
E Educacional e cultura física E-1 Escola em geral 3 (três) anos
E-2 Escola especial
E-3 Espaço para cultura física
E-4 Centro de treinamento profissional
E-5 Pré-escola
E-6 Escola para portadores de deficiências
F Local de Reunião de Público F-1 Local onde há objeto de valor inestimável 3 (três) anos
F-2 Local religioso e velório
F-3 Centro esportivo e de exibição 1 (um) ano para estádios de futebol e 2 (dois) anos para demais usos
F-4 Estação e terminal de passageiro 2 (dois) anos
F-5 Arte cênica e auditório
F-6 Clube social e Salão de Festa
F-7 Ocupação temporária 2 (dois) meses ou 30 (trinta) dias
F-8 Local para refeição 3 (três) anos
F-9 Recreação pública
F-10 Exposição de objetos ou animais 3 (três) anos
F-11 Boate 1 (um) ano
G Serviço automotivo e assemelhados G-1 Garagem sem acesso de público e sem abastecimento 3 (três) anos
G-2 Garagem com acesso de público e sem abastecimento
G-3 Local dotado de abastecimento de combustível
G-4 Serviço de conservação, manutenção e reparos
G-5 Hangar
H Serviço de saúde e institucional H-1 Hospital veterinário e assemelhados 3 (três) anos
H-2 Local onde pessoas requerem cuidados especiais por limitações físicas ou mentais
H-3 Hospital e assemelhado
H-4 Repartição pública, edificações das forças armadas e policiais
H-5 Local onde a liberdade das pessoas sofre restrições
H-6 Clínica e consultório médico e odontológico
I Indústria I-1 Indústria com carga de incêndio até 300 MJ/m² 3 (três) anos
I-2 Indústria com carga de incêndio acima de 300 MJ/m² até 1.200 MJ/m²
I-3 Indústria com carga de incêndio superior a 1.200 MJ/m²
J Depósito J-1 Depósito de material incombustível 3 (três) anos
J-2 Depósito com carga de incêndio até 300 MJ/m²
J-3 Depósito com carga de incêndio acima de 300 MJ/m² até 1.200 MJ/m²
J-4 Depósito com carga de incêndio superior a 1.200 MJ/m²
K Energia K-1 Central de transmissão e distribuição de energia 3 (três) anos
L Explosivo L-1 Comércio 2 (dois) anos
L-2 Indústria 1 (um) ano
L-3 Depósito
M Especial M-1 Túnel 3 (três) anos
M-2 Líquido ou gás igníferos (inflamável ou combustível)
M-3 Central de comunicação
M-4 Canteiro de obras
M-5 Silos
M-6 Floresta nativa ou cultivada
M-7 Pátio de contêineres

Notas Genéricas:

1) Para edificações e/ou áreas de risco que estejam desabitadas e que não possa ser fornecido o Atestado de brigada contra incêndio, o AVCB deve ter prazo de vigência de 01 (um) ano.

Venha participar da maior comunidade de segurança contra incêndio do Brasil!